This calculator provides a guide to the amount of residential stamp duty you may pay and does not guarantee this will be the actual cost. This calculation is based on the Stamp Duty Land Tax Rates for residential properties purchased from 23rd September 2022 and second homes from 31st October 2024. For more information on Stamp Duty Land Tax, click here.
2 bedroom Flat for sale, Rowan Court, Southsea, Hampshire, PO4
Features and Description
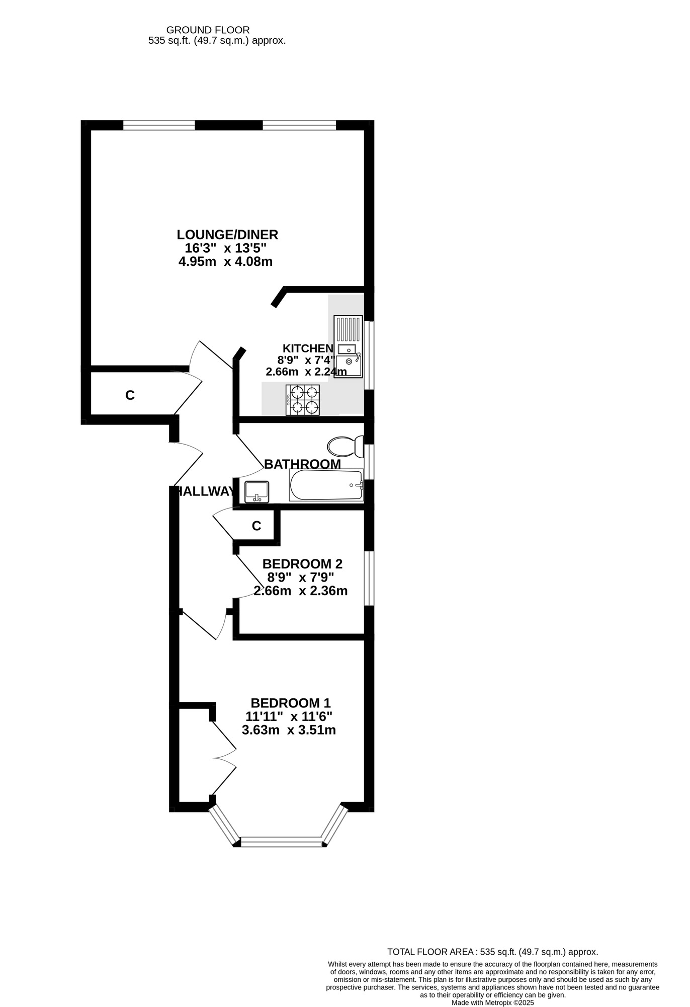
This superb two bedroom apartment offers so many features its hard to know where to start! Well perhaps the apartment itself, set on the top floor it offers wonderfully bright spacious accommodation and triple aspect views over the city. Together with the sheer amount of natural light it really marks this home out as a little bit different! However we go on the home also enjoys off road parking, a communal garden and an incredibly handy location with the train station, excellent local shops and even the beach not far off! In summary the accommodation comprises an entrance hall, large sitting/dining room, separate kitchen, bathroom and tow good bedrooms. Finished in neutral decor this will make an excellent first time buy or investment for those in the know
Full Description
This superb two bedroom apartment offers so many features its hard to know where to start! Well perhaps the apartment itself, set on the top floor it offers wonderfully bright spacious accommodation and triple aspect views over the city. Together with the sheer amount of natural light it really marks this home out as a little bit different! However we go on the home also enjoys off road parking, a communal garden and an incredibly handy location with the train station, excellent local shops and even the beach not far off! In summary the accommodation comprises an entrance hall, large sitting/dining room, separate kitchen, bathroom and tow good bedrooms. Finished in neutral decor this will make an excellent first time buy or investment for those in the know
Security Entrance
With intercom.
Entrance Hall
Useful stoarge.
Lounge / Diner
4.95 x 4.08
A superb room full of natural light with its two large west facing windows looking our over the city. More than enough space for sofas and a dining room table and chairs.
Kitchen
2.66 x 2.24
Finished in a white contemporary style and offering plenty of base and eye level units. Built in oven and hob, space and plumbing and space for tall fridge freezer. Again nice views over the city.
Bathroom
Window to the side aspect. A panel enclosed bath with shower over, low level W/C and wash hand basin.
Master Bedroom
3.63 x 3.51
Another real feature of the home with its large bay window again offering much in the way of natural light and views. Large built in wardrobe.
Bedroom
2.66 x 2.36
Still a decent size room ideal as a bedroom or office for those working from home.
Parking
Allocated off road parking.
Communal Garden
Found to the rear of the building and available for residents.
Directions
For your satnav use PO4 8UU.
IMPORTANT NOTE TO POTENTIAL PURCHASERS:
We endeavour to make our particulars accurate and reliable, however, they do not constitute or form part of an offer or any contract and none is to be relied upon as statements of representation or fact. The services, systems and appliances listed in this specification have not been tested by us and no guarantee as to their operating ability or efficiency is given. All photographs and measurements have been taken as a guide only and are not precise. Floor plans where included are not to scale and accuracy is not guaranteed. If you require clarification or further information on any points, please contact us, especially if you are travelling some distance to view. Fixtures and fittings other than those mentioned are to be agreed with the seller.
Rowan Court, Southsea, Hampshire, PO4
Additional Information
-
Property refSOU250123
-
EPCE
-
TenureLeasehold
-
Lease length90 years
-
Council TaxB
-
Ground Rent£37
-
Ground Rent ReviewContact the branch
-
Service Charge£730
Similar properties for sale by Reeds Rains Southsea
The pin shows the exact address of the property
Energy Efficiency Rating
Very energy efficient - lower running costs
Not energy efficient - higher running costs
Current
54Potential
75CO2 Rating
Very energy efficient - lower running costs
Not energy efficient - higher running costs
