This calculator provides a guide to the amount of residential stamp duty you may pay and does not guarantee this will be the actual cost. This calculation is based on the Stamp Duty Land Tax Rates for residential properties purchased from 23rd September 2022 and second homes from 31st October 2024. For more information on Stamp Duty Land Tax, click here.
2 bedroom Flat for sale, Schools Hill, Cheadle, Greater Manchester, SK8
Features and Description
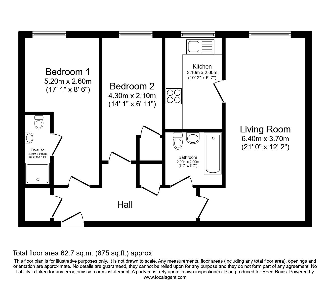
Presenting an neutrally decorated two-bedroom upper floor flat, offered for sale in a highly sought-after over-60s development at the heart of Cheadle. Designed to an exceptional standard, this property expertly balances style, comfort, and practicality—perfect for those seeking a refined retirement option with every modern convenience within easy reach.
Upon entering the spacious and welcoming hallway, the quality of finish and thoughtful layout are immediately apparent. The separate reception room is bright and generously proportioned, featuring a calming neutral décor and delightful garden views, providing an ideal setting for relaxing or entertaining guests. The modern, well-presented kitchen boasts built-in pantries, abundant natural light, and sleek high-gloss cabinetry with integrated appliances—perfect for preparing meals in a stylish setting.
The principal double bedroom is spacious and tranquil, complete with its own en-suite bathroom with a large walk-in shower for added comfort and privacy. The second bedroom, also a generous double, offers flexibility to serve as a guest room, hobby space, or home office. The well-presented main bathroom complements the accommodation perfectly.
Allocated parking ensures practicality and ease of access, while residents have exclusive use of beautifully maintained communal gardens—a peaceful retreat for unwinding or socialising with neighbours.
Set amidst excellent public transport links, nearby schools, local amenities, green spaces, and picturesque walking routes, this property is enviably positioned within a sought-after location. With an EPC rating of B, this outstanding flat presents a prestigious opportunity not to be missed.
IMPORTANT NOTE TO POTENTIAL PURCHASERS:
We endeavour to make our particulars accurate and reliable, however, they do not constitute or form part of an offer or any contract and none is to be relied upon as statements of representation or fact. The services, systems and appliances listed in this specification have not been tested by us and no guarantee as to their operating ability or efficiency is given. All photographs and measurements have been taken as a guide only and are not precise. Floor plans where included are not to scale and accuracy is not guaranteed. If you require clarification or further information on any points, please contact us, especially if you are travelling some distance to view. Fixtures and fittings other than those mentioned are to be agreed with the seller.
Schools Hill, Cheadle, Greater Manchester, SK8
Additional Information
-
Property refCHE250256
-
EPCB
-
TenureLeasehold
-
Council TaxD
-
Ground RentContact the branch
-
Ground Rent ReviewContact the branch
-
Service ChargeContact the branch
Similar properties for sale by Reeds Rains Cheadle
The pin shows the exact address of the property
Energy Efficiency Rating
Very energy efficient - lower running costs
Not energy efficient - higher running costs
Current
81Potential
84CO2 Rating
Very energy efficient - lower running costs
Not energy efficient - higher running costs
