2 bedroom Flat to rent, Dale Street, Manchester, Greater Manchester, M1
Available Furnished, from 25/11/2025
Features and Description
- Available NOW
- Deposit - £1326.92
- EPC Grade - D
- Council Tax Band - D
- Two Double Bedrooms
- Northern Quarter Location
- Close To Piccadilly Train Station
- Converted Building
** AVAILABLE NOW **
Reeds Rains are delighted to market this extremely spacious two-double bedroom, furnished apartment in the popular Millington House development within the heart of the Northern Quarter. EPC Grade - D. Council Tax Band - D.
Converted in 2001, this former bank is conveniently nestled between the bars and restaurants of NQ and a 5 minutes walk from Piccadilly train station.
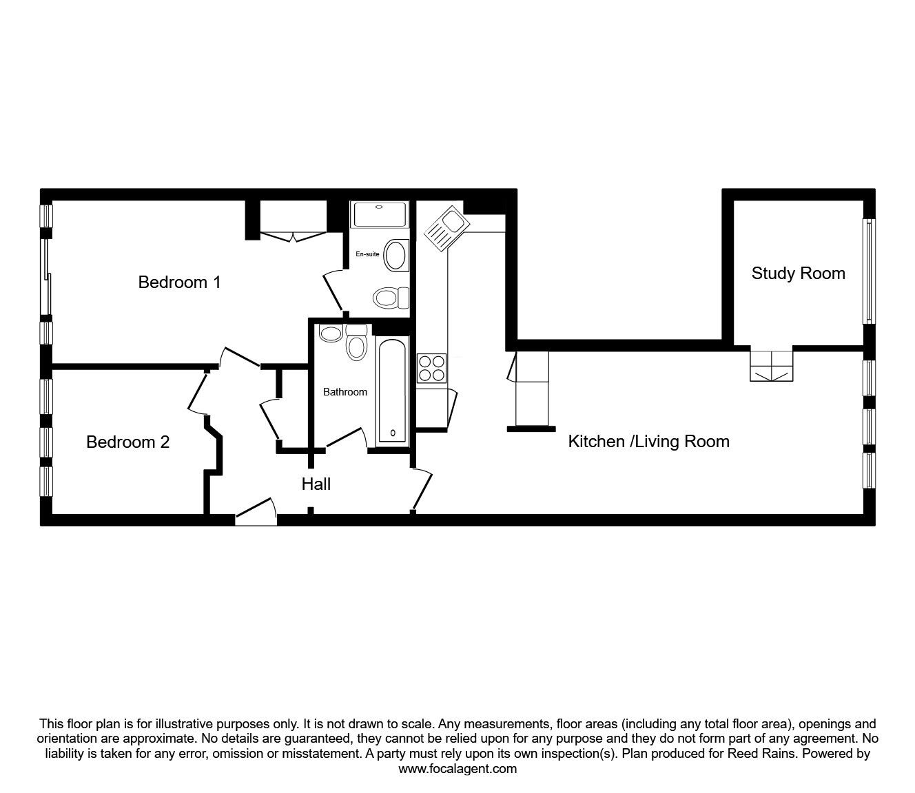
The property itself comprises of a hallway, modern bathroom and shower ensuite, two double bedrooms, open-plan kitchen with integrated appliances , lounge and space for a small study.
IMPORTANT NOTE TO POTENTIAL RENTERS:
We endeavour to make our particulars accurate and reliable, however, they do not constitute or form part of an offer or any contract and none is to be relied upon as statements of representation or fact. The services, systems and appliances listed in this specification have not been tested by us and no guarantee as to their operating ability or efficiency is given. All photographs and measurements have been taken as a guide only and are not precise. Floor plans where included are not to scale and accuracy is not guaranteed. If you require clarification or further information on any points, please contact us, especially if you are travelling some distance to view.
All properties are available for a minimum of six months, with the exception of short term accommodation. A security deposit of at least one month’s rent is required. Rent is to be paid one month in advance. It is the tenant’s responsibility to insure any personal possessions. Payment of all utilities including water rates or metered supply and Council Tax is the responsibility of the tenant in every case.
Client Money Protection is provided by Propertymark. Redress through The Property Ombudsman Scheme.
Dale Street, Manchester, Greater Manchester, M1
Similar properties to rent by Reeds Rains Manchester
The pin shows the exact address of the property
Energy Efficiency Rating
Very energy efficient - lower running costs
Not energy efficient - higher running costs
Current
70Potential
79CO2 Rating
Very energy efficient - lower running costs
Not energy efficient - higher running costs
