2 bedroom Flat to rent, Water Street, Manchester, Greater Manchester, M3
Available Furnished, from 22/12/2025
Features and Description
- Available From 22/12/2025
- Deposit - £1384.62
- EPC Grade - C
- Council Tax Band - D
- Secure Parking
- Two Double Bedrooms
- Furnished
- Castlefield Location
- Balcony
- Views Over The River Irwell
- Two Bathrooms
** AVAILABLE FROM 22/12/2025 **
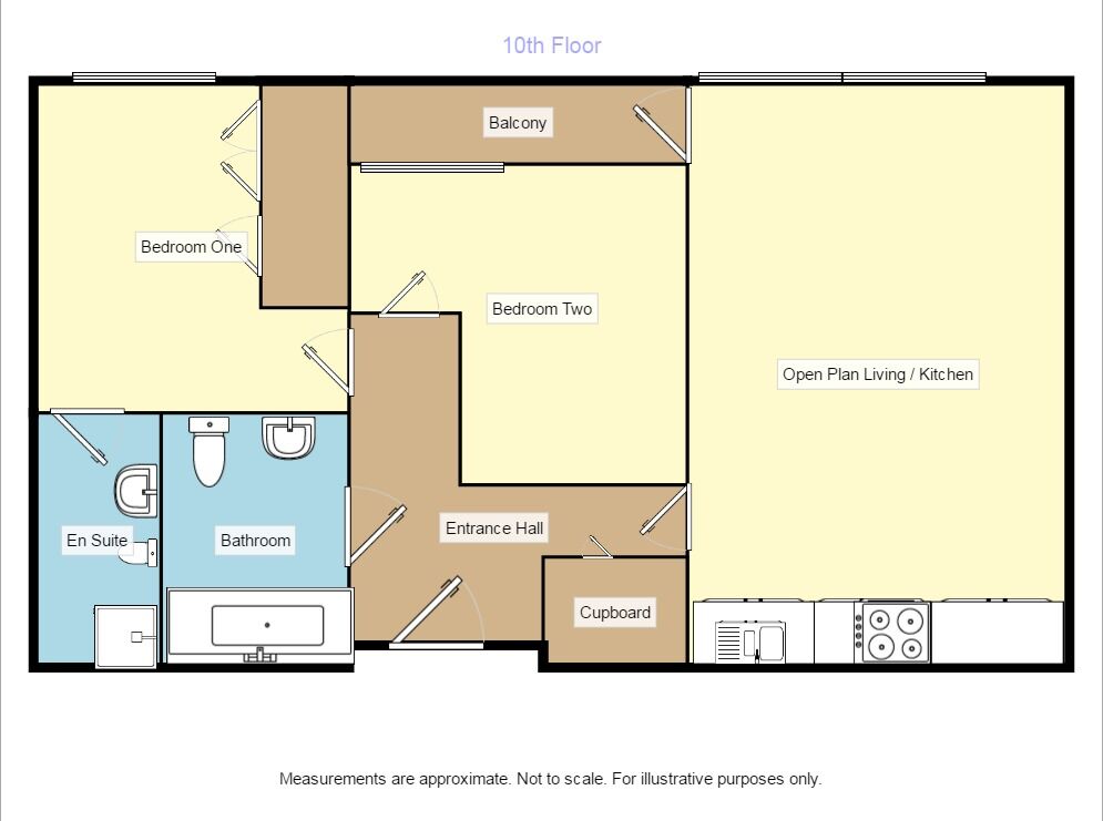
Reeds Rains are delighted to market this two double bedroom furnished apartment available to rent in the popular waterside development, Vie, located on the edge of Castlefield. EPC Rating: C. Council Tax Band - D.
The development is ideally located for access to the city centre, ring road and motorways. This brilliant two bedroom apartment consists of an allocated parking space, open plan lounge / kitchen area leading onto a decked balcony with views over the river, fully integrated kitchen, two double bedrooms and a modern bathroom suite.
Please note that the development is currently undergoing cladding works therefore scaffolding will be erected.
IMPORTANT NOTE TO POTENTIAL RENTERS:
We endeavour to make our particulars accurate and reliable, however, they do not constitute or form part of an offer or any contract and none is to be relied upon as statements of representation or fact. The services, systems and appliances listed in this specification have not been tested by us and no guarantee as to their operating ability or efficiency is given. All photographs and measurements have been taken as a guide only and are not precise. Floor plans where included are not to scale and accuracy is not guaranteed. If you require clarification or further information on any points, please contact us, especially if you are travelling some distance to view.
All properties are available for a minimum of six months, with the exception of short term accommodation. A security deposit of at least one month’s rent is required. Rent is to be paid one month in advance. It is the tenant’s responsibility to insure any personal possessions. Payment of all utilities including water rates or metered supply and Council Tax is the responsibility of the tenant in every case.
Client Money Protection is provided by Propertymark. Redress through The Property Ombudsman Scheme.
Water Street, Manchester, Greater Manchester, M3
Similar properties to rent by Reeds Rains Manchester
The pin shows the exact address of the property
Energy Efficiency Rating
Very energy efficient - lower running costs
Not energy efficient - higher running costs
Current
80Potential
82CO2 Rating
Very energy efficient - lower running costs
Not energy efficient - higher running costs
