










2 bedroom Flat to rent, Whitworth Street West, Manchester, Greater Manchester, M1
Available Furnished, from 28/10/2025
Features and Description
- Available From 28/10/2025
- Deposit - £1,673.07
- EPC Grade -B
- Council Tax Band - D
- Furnished
- 24hrs Concierge
- Close To Universities
- Close To Oxford Road Train Station
- Two Double Bedrooms
- Balcony
** AVAILABLE FROM 28/10/2025 **
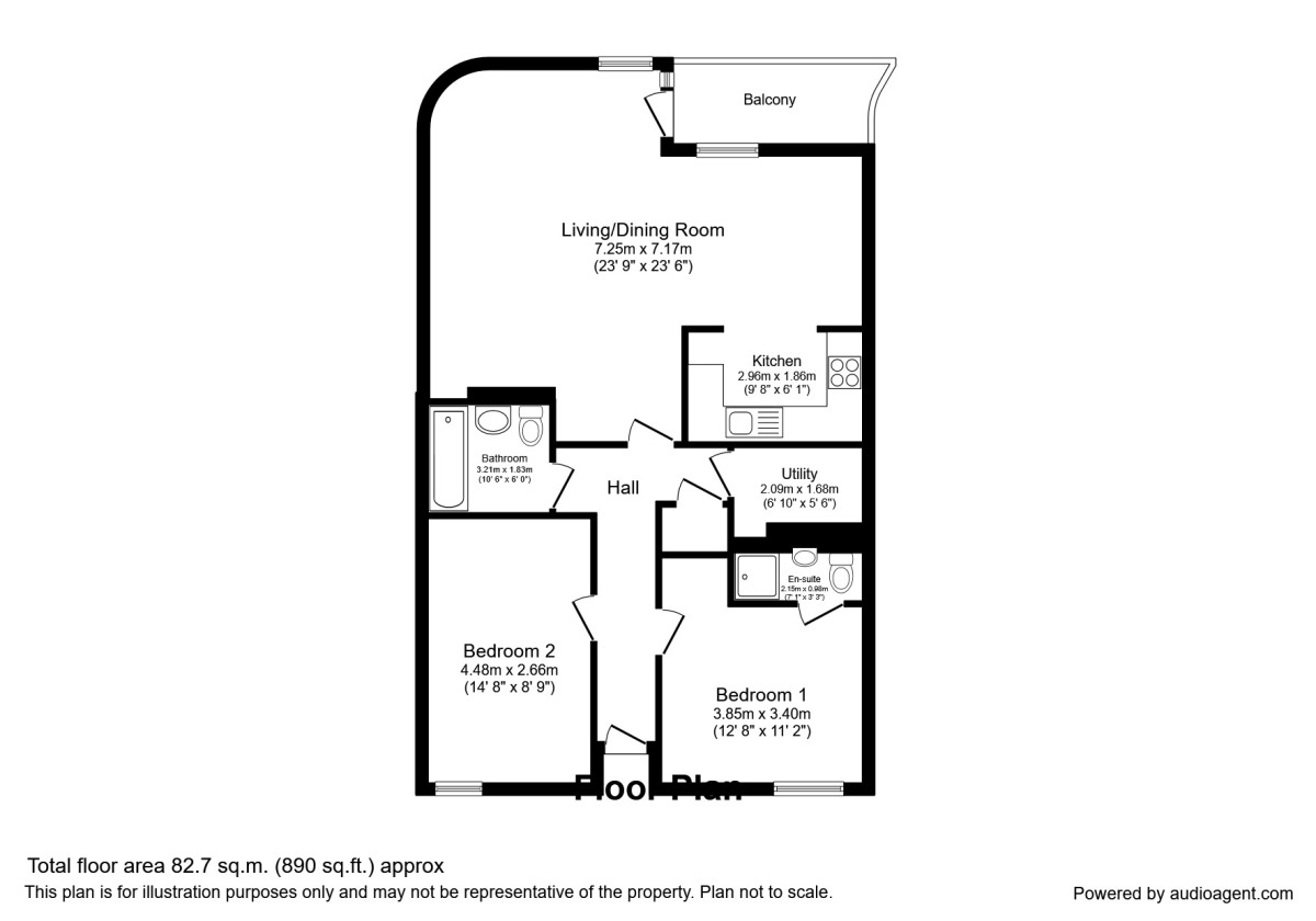
Reeds Rains are delighted to market this stunning, spacious and well presented TWO DOUBLE BEDROOM furnished apartment situated in the ever popular Lock Development. EPC Grade - B. Council Tax Band - D.
The property boasts underfloor heating in the bathrooms and living room alongside a 24 hours concierge. This lovely property is situated in a very convenient location within the city centre for easy access to Oxford Road, Manchester University as well as Deansgate.
This light and bright apartment is located on the 8th floor and overlooks Whitworth Street West, the private balcony is accessed via the living room. The kitchen is open to the reception and fitted to a high specification and both the bedrooms are generous double rooms. The bathroom and en suite shower room are both fitted with contemporary modern suites.
IMPORTANT NOTE TO POTENTIAL RENTERS:
We endeavour to make our particulars accurate and reliable, however, they do not constitute or form part of an offer or any contract and none is to be relied upon as statements of representation or fact. The services, systems and appliances listed in this specification have not been tested by us and no guarantee as to their operating ability or efficiency is given. All photographs and measurements have been taken as a guide only and are not precise. Floor plans where included are not to scale and accuracy is not guaranteed. If you require clarification or further information on any points, please contact us, especially if you are travelling some distance to view.
All properties are available for a minimum of six months, with the exception of short term accommodation. A security deposit of at least one month’s rent is required. Rent is to be paid one month in advance. It is the tenant’s responsibility to insure any personal possessions. Payment of all utilities including water rates or metered supply and Council Tax is the responsibility of the tenant in every case.
Client Money Protection is provided by Propertymark. Redress through The Property Ombudsman Scheme.
Whitworth Street West, Manchester, Greater Manchester, M1
Similar properties to rent by Reeds Rains Manchester











The pin shows the exact address of the property
Energy Efficiency Rating
Very energy efficient - lower running costs
Not energy efficient - higher running costs
Current
82Potential
85CO2 Rating
Very energy efficient - lower running costs
Not energy efficient - higher running costs