This calculator provides a guide to the amount of residential stamp duty you may pay and does not guarantee this will be the actual cost. This calculation is based on the Stamp Duty Land Tax Rates for residential properties purchased from 23rd September 2022 and second homes from 31st October 2024. For more information on Stamp Duty Land Tax, click here.
3 bedroom Mid Terrace House for sale, Raleigh Street, Scarborough, North Yorkshire, YO12
Features and Description
- Mid Terraced Home
- Four Bedrooms
- Set Over 3 Floors
- No Onward Chain
- Close to Gladstone Road School
- Ideal Investment
- EPC Grade E
- Council Tax Band B
Main Description
This three mid terraced home can be found on Raleigh Street, just a short walk from Scarborough's Town Centre. Offering deceptively spacious living accommodation over three floors, the property would make an ideal first time buy, family home or an investment. The property benefits from the popular Gladstone Road Primary School being only a short walk away with a range of shops and other amenities and Manor Road park also in walking distance.
The property in brief comprises: Entrance hall, living room, second reception room dining room and kitchen to the ground floor, two double bedrooms, bathroom and shower room to the first floor and a further bedroom and attic room to the second floor. Outside to the front is a forecourt entrance and a private yard to the rear. The property is double glazed with gas central heating via combi boiler.
Viewings are highly recommended and can be made through our office by appointment only, an online viewing is also available.
EPC Grade D and Council Tax Band B
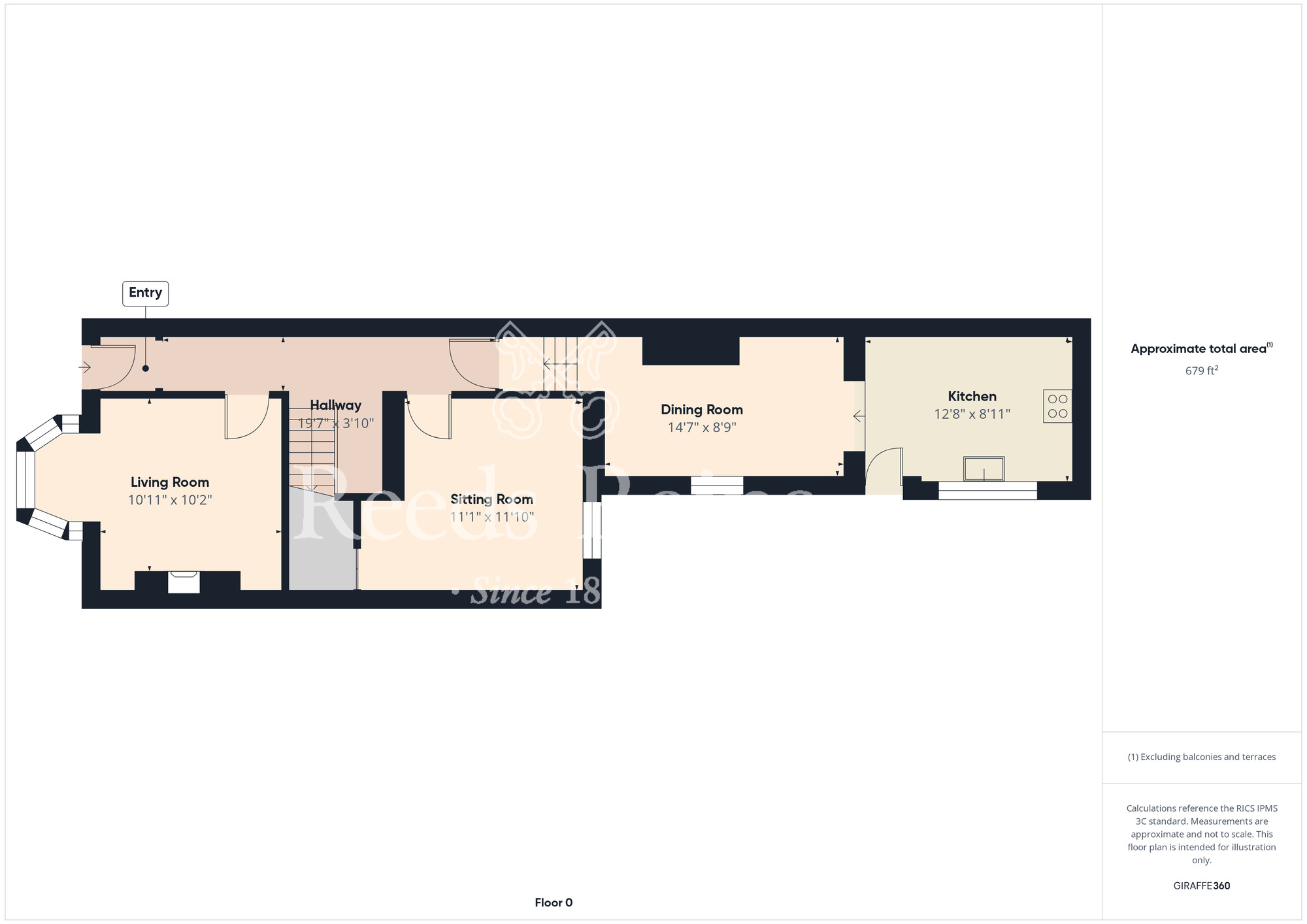
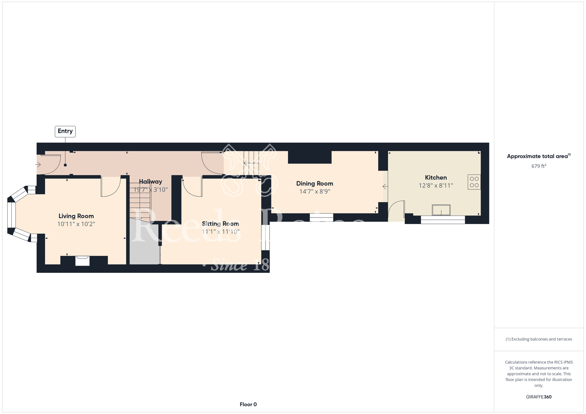
Ground Floor
Entrance Hall
Door into entrance porch, door into hallway, wall mounted radiator, doors into all room and staircase to first floor.
Living Room
With bay window to the front elevation, wall mounted radiator and feature fireplace.
Reception Room
With wall mounted radiator, window to the rear elevation and under stairs storage cupboard - currently used as additional bedroom.
Dining Room
Dining area, wall mounted radiator, breakfast bar, window to the side - open plan to:
Kitchen
Fitted kitchen made up from a range of wall and base units with matching worktops, tiled splashback and sink under the window to the side elevation. Integrated electric oven with gas hob and concealed extractor above, space for two under counter appliances, wall mounted combi boiler and door into the rear yard.
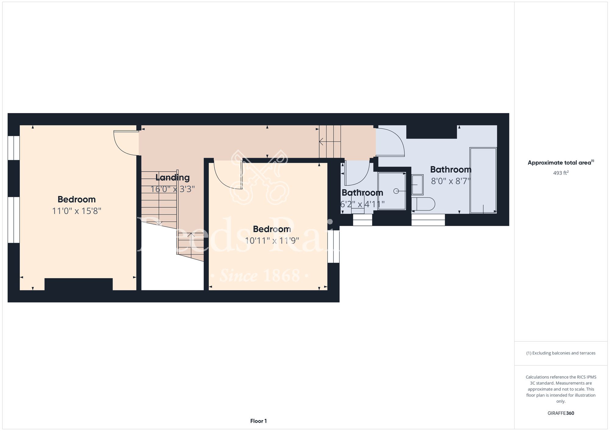
First Floor
Landing
With wall mounted radiator, doors into all rooms and staircase to second floor.
Bedroom
Double bedroom to the front elevation with two windows and wall mounted radiator.
Bedroom
Double bedroom with window to the rear elevation, wall mounted radiator and storage cupboard.
Bathroom
Beautiful refitted bathroom suite comprising WC and vanity unit wash basin, free standing roll top bath, window to the side elevation and modern column style radiator.
Shower Room
Refitted modern shower room, partially tiled with walk in shower cubicle, WC with wash basin above and window to the side elevation.
Second Floor
Landing
With doors into:
Bedroom
Double bedroom with skylight window and wall mounted radiator, eaves storage.
Attic Room
With wall mounted radiator, ideal storage room or home office.
External
To the front of the property is a welcoming, gated forecourt. To the rear of the property is a private, decked seating area.
Property Information
Local Authority North Yorkshire
Conservation Area - No
Council Tax Band Band B
Council Tax Estimate £1,881
Latest FENSA Work 29/09/2019
Rivers & Seas - Very low
Surface Water - Very low
Coverage
Mobile (based on calls indoors)
O2 Good
EE Average
Three Good
Vodafone Good
Broadband (estimated speeds)
Standard 18 mbps
Superfast 50 mbps
Ultrafast 1800 mbps
Satellite & Cable TV Availability
BT Yes
Sky Yes
Virgin Yes
Agent Information
HMRC is a supervisory body for money laundering regulations, of which all estate agents need to be registered. As part of this, there are multiple requirements that agents must rigorously and consistently meet to ensure they stay compliant with the regulations and protect their clients. To do this, we use an identity verification service, approved by the Government as part of the Digital Identity and Attributes Trust Framework (DIATF). This method and the process we follow to ensure compliance for your transaction come with significant time, financial and legal implications hence a portion of this is passed on. We elected for this verification process due to the speed, certainty, and accuracy it delivers. This helps us to protect all our client's interests by using the most advanced verification process to help prevent the impacts of money laundering alongside our internal manual policies and procedures while staying compliant with HMRC. The administrative charge for this process is £40 plus VAT for a sole purchaser, £65 plus VAT for two purchasers and £75 plus VAT three or more purchasers.
Entrance Hall
Door into entrance porch, door into hallway, wall mounted radiator, doors into all room and staircase to first floor.
Living Room
With bay window to the front elevation, wall mounted radiator and feature fireplace.
Reception Room
With wall mounted radiator, window to the rear elevation and under stairs storage cupboard - currently used as additional bedroom.
Dining Room
Dining area, wall mounted radiator, breakfast bar, window to the side - open plan to:
Kitchen
Fitted kitchen made up from a range of wall and base units with matching worktops, tiled splashback and sink under the window to the side elevation. Integrated electric oven with gas hob and concealed extractor above, space for two under counter appliances, wall mounted combi boiler and door into the rear yard.
Landing
With wall mounted radiator, doors into all rooms and staircase to second floor.
Bedroom
Double bedroom to the front elevation with two windows and wall mounted radiator.
Bedroom
Double bedroom with window to the rear elevation, wall mounted radiator and storage cupboard.
Bathroom
Beautiful refitted bathroom suite comprising WC and vanity unit wash basin, free standing roll top bath, window to the side elevation and modern column style radiator.
Shower Room
Refitted modern shower room, partially tiled with walk in shower cubicle, WC with wash basin above and window to the side elevation.
Landing
With doors into:
Bedroom
Double bedroom with skylight window and wall mounted radiator, eaves storage.
Attic Room
With wall mounted radiator, ideal storage room or home office.
External
To the front of the property is a welcoming, gated forecourt. To the rear of the property is a private, decked seating area.
Property Information
Local Authority North YorkshireConservation Area - NoCouncil Tax Band Band BCouncil Tax Estimate £1,881Latest FENSA Work 29/09/2019Rivers & Seas - Very lowSurface Water - Very lowCoverageMobile (based on calls indoors)O2 GoodEE AverageThree GoodVodafone GoodBroadband (estimated speeds)Standard 18 mbpsSuperfast 50 mbpsUltrafast 1800 mbpsSatellite & Cable TV AvailabilityBT YesSky YesVirgin Yes
Agent Information
HMRC is a supervisory body for money laundering regulations, of which all estate agents need to be registered. As part of this, there are multiple requirements that agents must rigorously and consistently meet to ensure they stay compliant with the regulations and protect their clients. To do this, we use an identity verification service, approved by the Government as part of the Digital Identity and Attributes Trust Framework (DIATF). This method and the process we follow to ensure compliance for your transaction come with significant time, financial and legal implications hence a portion of this is passed on. We elected for this verification process due to the speed, certainty, and accuracy it delivers. This helps us to protect all our client's interests by using the most advanced verification process to help prevent the impacts of money laundering alongside our internal manual policies and procedures while staying compliant with HMRC.The administrative charge for this process is £40 plus VAT for a sole purchaser, £65 plus VAT for two purchasers and £75 plus VAT three or more purchasers.
IMPORTANT NOTE TO POTENTIAL PURCHASERS:
We endeavour to make our particulars accurate and reliable, however, they do not constitute or form part of an offer or any contract and none is to be relied upon as statements of representation or fact. The services, systems and appliances listed in this specification have not been tested by us and no guarantee as to their operating ability or efficiency is given. All photographs and measurements have been taken as a guide only and are not precise. Floor plans where included are not to scale and accuracy is not guaranteed. If you require clarification or further information on any points, please contact us, especially if you are travelling some distance to view. Fixtures and fittings other than those mentioned are to be agreed with the seller.
Raleigh Street, Scarborough, North Yorkshire, YO12
Additional Information
-
Property refSCA250327
-
EPCD
-
TenureFreehold
-
Council TaxB
Similar properties for sale by Reeds Rains Scarborough
The pin shows the exact address of the property
Energy Efficiency Rating
Very energy efficient - lower running costs
Not energy efficient - higher running costs
Current
56Potential
77CO2 Rating
Very energy efficient - lower running costs
Not energy efficient - higher running costs
