This calculator provides a guide to the amount of residential stamp duty you may pay and does not guarantee this will be the actual cost. This calculation is based on the Stamp Duty Land Tax Rates for residential properties purchased from 23rd September 2022 and second homes from 31st October 2024. For more information on Stamp Duty Land Tax, click here.
3 bedroom Mid Terrace House for sale, Sargasso Walk, Thornaby, Durham, TS17
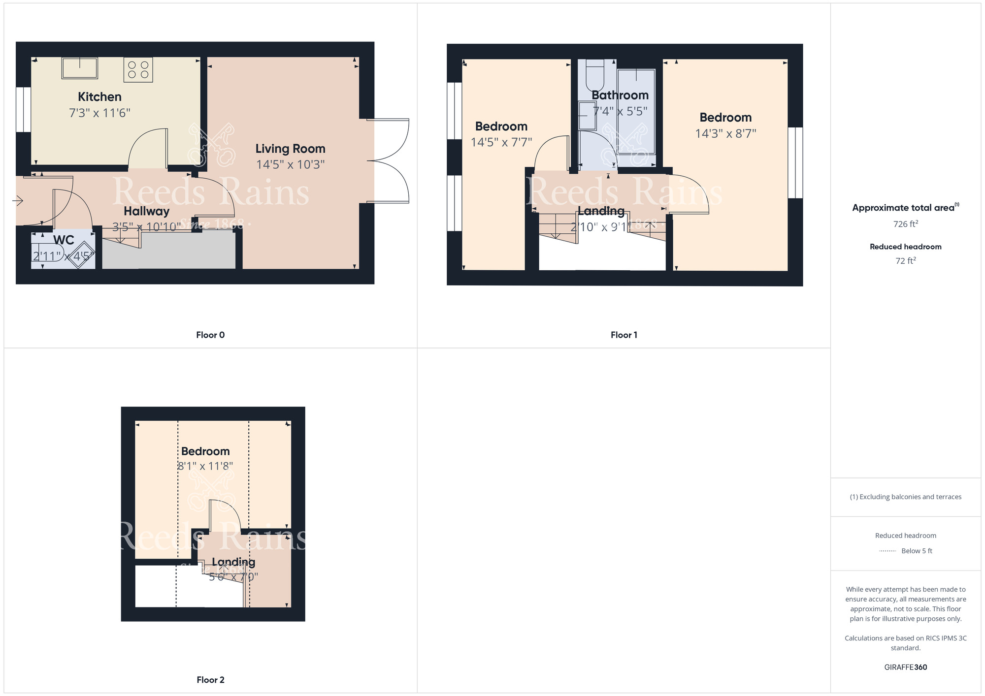
Features and Description
- 3 Bedrooms
- Entrance Hall
- Cloaks/ Wc
- Kitchen
- Lounge
- Bathroom
- Gardens and Parking
Welcome to this delightful modern mid-terraced house, boasting 3 bedrooms over 3 floors, reception room, and bathroom. This charming property is the epitome of comfort and convenience, offering a cosy and homely atmosphere that is sure to make you feel right at home. The interior is well-lit and maintained, providing a modern and inviting space for you and your family.
Step outside and discover your own private garden and patio, perfect for enjoying the outdoors or entertaining guests. With off-street parking available, convenience is key when it comes to this property. Whether you're looking for a your first home or buy to let, this house offers it all. Don't miss out on the opportunity to call this lovely property your new home sweet home.
Entrance Hall
From the moment you arrive, this home makes an impression. A charming, pedestrianised frontage invites you in, leading to a welcoming entrance hall where a staircase rises to the first floor. From here, step into the thoughtfully arranged ground floor living spaces—perfect for modern family life.
Cloaks / Wc
Ideal for a busy household, the convenient ground floor WC adds both practicality and privacy—featuring a wash basin and toilet, it keeps the upstairs living spaces undisturbed.
Kitchen
Bright and functional, the kitchen enjoys views to the front and offers a well-planned layout with ample storage, generous work surfaces, and a modern sink and tap. With space for a range of appliances, it’s a practical and well-equipped space that suits the needs of a growing family.
Lounge
With French doors opening onto the rear garden, the lounge is a warm and welcoming space—perfect for relaxing in the evenings, spending quality time with family, or entertaining guests in comfort and style.
First floor landing
Heading up to the first floor, the landing provides access to the well-appointed accommodation on this level and continues upward to the second floor, creating a natural flow through the home.
Bedroom 1
Bedroom One is a generously sized double, offering plenty of space for a comfortable bed along with a full range of bedroom furniture—perfect for creating a relaxing personal retreat.
Bedroom 2
A fantastic children's bedroom, this versatile space easily accommodates a bed and wardrobe, with plenty of room left to personalise—whether it's for play, study, or creative touches to make it their own.
Bathroom
The bathroom features a timeless white suite, including a panelled bath, WC, and wash basin—offering a clean and functional space for everyday comfort.
Second floor landing
Thoughtfully designed, the second-floor landing is bathed in natural light from a large skylight, creating a bright and airy space that leads seamlessly to Bedroom Three.
Bedroom 3
A spacious and characterful bedroom, tucked into the eaves, this room offers a unique and charming atmosphere, flooded with natural light that enhances its cosy appeal.
Gardens and Parking
Stepping outside to the front, a lush lawned area creates a welcoming connection between the delightful pedestrianised frontage and the home. Around to the rear, the enclosed garden offers a spacious patio—perfect for soaking up the sun while providing a secure space for children to play. Gated access leads to a rear courtyard with parking for up to two cars, conveniently located within its own designated space.
Additional Information
Local Authority: Stockton-on-teesConservation Area: NoCouncil Tax Band A. Council Tax Estimate £1,646Flood Risk: Rivers & Seas, Very low. Surface Water, Very lowTenure: FreeholdRestrictive Covenants: Yes. (Buyers area advised to discuss this with their solicitors )CoverageMobile (based on calls indoors)O2, EE, Three VodafoneBroadband (estimated speeds)Standard 5 mbpsUltrafast 10000 mbpsSatellite & Cable TV AvailabilityBT, Sky, VirginUtilities: Mains sewerage, gas, water and electricLocal planning applications: 1Construction: Standard.
Information for buyers
HMRC is a supervisory body for money laundering regulations, of which all estate agents need to be registered. As part of this, there are multiple requirements that agents must rigorously and consistently meet to ensure they stay compliant with the regulations and protect their clients. To do this, we use an identity verification service, approved by the Government as part of the Digital Identity and Attributes Trust Framework (DIATF). This method and the process we follow to ensure compliance for your transaction come with significant time, financial and legal implications hence a portion of this is passed on. We elected for this verification process due to the speed, certainty, and accuracy it delivers. This helps us to protect all our client's interests by using the most advanced verification process to help prevent the impacts of money laundering alongside our internal manual policies and procedures while staying compliant with HMRC.
The administrative charge for this process is £40 plus VAT for a sole purchaser, £65 plus VAT for two purchasers and £75 plus VAT three or more purchasers.
IMPORTANT NOTE TO POTENTIAL PURCHASERS:
We endeavour to make our particulars accurate and reliable, however, they do not constitute or form part of an offer or any contract and none is to be relied upon as statements of representation or fact. The services, systems and appliances listed in this specification have not been tested by us and no guarantee as to their operating ability or efficiency is given. All photographs and measurements have been taken as a guide only and are not precise. Floor plans where included are not to scale and accuracy is not guaranteed. If you require clarification or further information on any points, please contact us, especially if you are travelling some distance to view. Fixtures and fittings other than those mentioned are to be agreed with the seller.
Sargasso Walk, Thornaby, Durham, TS17
Additional Information
-
Property refSTO250195
-
EPCC
-
TenureFreehold
-
Council TaxA
-
Local authorityStockton Borough Council
Similar properties for sale by Reeds Rains Stockton on Tees
Bright and functional, the kitchen enjoys views to the front and offers a well-planned layout with ample storage, generous work surfaces, and a modern sink and tap. With space for a range of appliances, it’s a practical and well-equipped space that suits the needs of a growing family.
With French doors opening onto the rear garden, the lounge is a warm and welcoming space—perfect for relaxing in the evenings, spending quality time with family, or entertaining guests in comfort and style.
Bedroom One is a generously sized double, offering plenty of space for a comfortable bed along with a full range of bedroom furniture—perfect for creating a relaxing personal retreat.
A fantastic children's bedroom, this versatile space easily accommodates a bed and wardrobe, with plenty of room left to personalise—whether it's for play, study, or creative touches to make it their own.
The bathroom features a timeless white suite, including a panelled bath, WC, and wash basin—offering a clean and functional space for everyday comfort.
A spacious and characterful bedroom, tucked into the eaves, this room offers a unique and charming atmosphere, flooded with natural light that enhances its cosy appeal.
The pin shows the exact address of the property
Energy Efficiency Rating
Very energy efficient - lower running costs
Not energy efficient - higher running costs
Current
76Potential
88CO2 Rating
Very energy efficient - lower running costs
Not energy efficient - higher running costs
