This calculator provides a guide to the amount of residential stamp duty you may pay and does not guarantee this will be the actual cost. This calculation is based on the Stamp Duty Land Tax Rates for residential properties purchased from 23rd September 2022 and second homes from 31st October 2024. For more information on Stamp Duty Land Tax, click here.
3 bedroom Mid Terrace House for sale, The Valley, East Hedley Hope, Durham, DL13
Features and Description
- Rural Living
- Double Garden
- Chain Free
- Three Double Bedrooms
- En-suite Bathroom
- Private Garden
This spectacular three bedroom mid-terraced house warrants your attention! Situated in the south of the quaint village of East Hedley Hope, this is a must-see for those looking for a rural location; the property boasts ample parking, a large garden and is surrounded by plenty of green open space. Internally, the property briefly comprises a large lounge and kitchen diner on the ground floor, and three generous double bedrooms and a family bathroom to the first floor. Call us on 0191 384 1222 to arrange a viewing.
EPC Grade E
Council Tax Band C
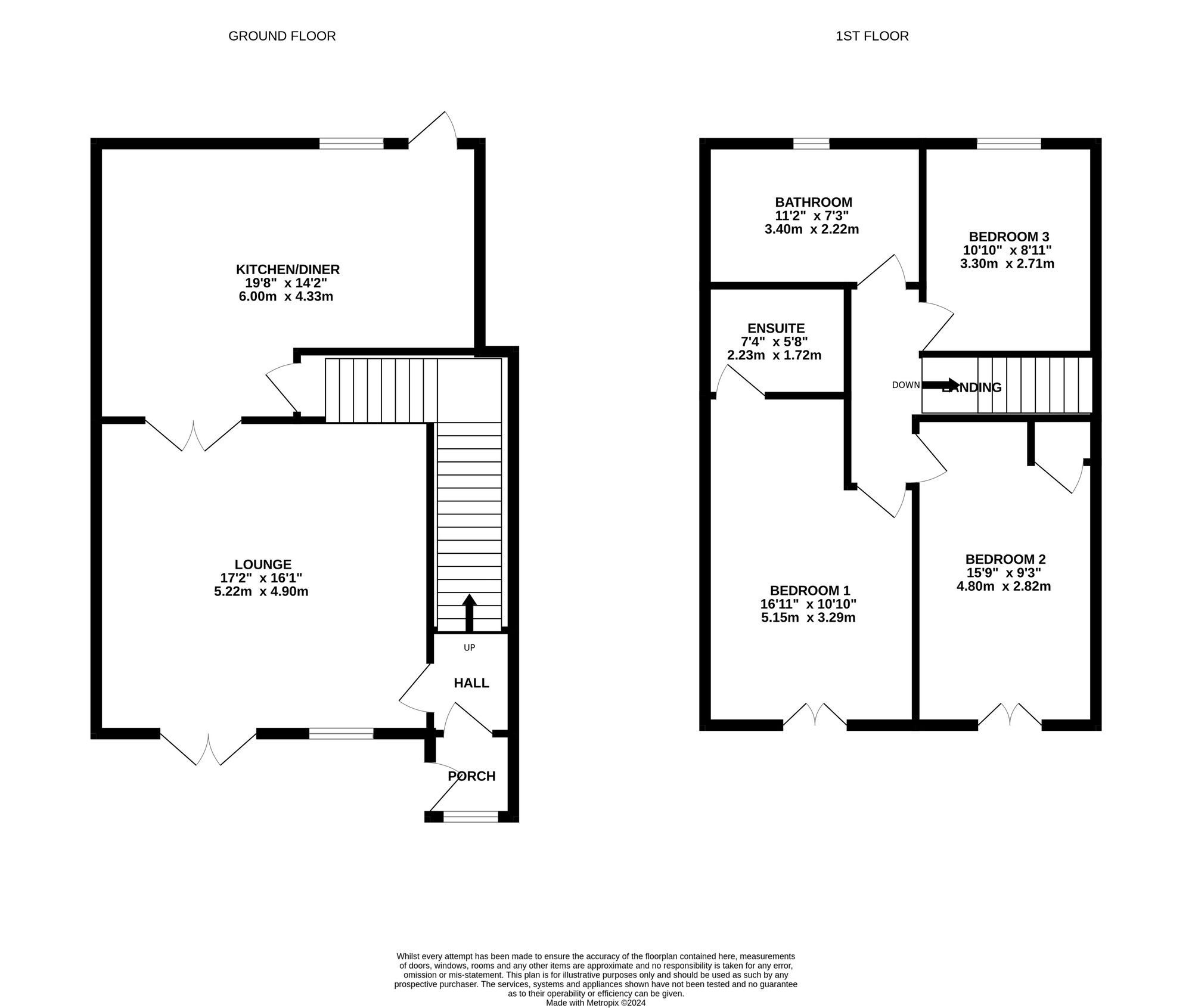
Porch
UPVc door access to the front of the property into porch with wooden floor and window to front.
Hall
Hall with access into lounge and with staircase to the first floor. Featuring a solid wood floor.
Lounge
5.2mx4.9m
Natural light coming from patio doors to the front and a double glazed window, light the room. Heated by a radiator and an electric fireplace. With doorway into the kitchen/diner. Featuring a solid wood floor.
Kitchen / Diner
6mx4.3m
Fabulous modern kitchen with stone worktops and laminate units which house fully integrated units including the oven and induction hob, microwave, dishwasher, plumbed in washer and a fridge/freezer. With a double radiator, a window to the rear, rear access via UPVc door, and a storage cupboard under the stairs. With EvoCore Premium Flooring.
First Floor Landing
Carpeted hallway atop a carpeted stairwell on the first floor. Leading to three bedrooms and a family bathroom
Bedroom 1
5.1mx3.3m
Carpeted double bedroom with a Juliet balcony to the front. With an en-suite bathroom.
En-Suite Bathroom
In the first bedroom. With a bath, toilet, and sink. Also featuring a heated towel rail and an extractor fan.
Bedroom 2
4.8mx2.8m
Carpeted bedroom with a Juliet balcony to the front. With a radiator and built in storage.
Bedroom 3
3.2mx2.7m
Carpeted double bedroom with a window to the rear. With fitted wardrobes, a storage cupboard, and a double radiator.
Bathroom
Four-piece-suite with a large corner bath, walk-in shower, toilet, and sink Also containing a radiator, an extractor fan, and a frosted window to the rear.
External
Courtyard at the front with off-street parking. Also contains a garden with a double garage.
Additional Information
Floor Area: 1,227 ft2 / 114 m2Plot Area: 0.13 acresYear Built : 1976-1982Council Tax : Band CAnnual Estimate: £2,161Tenure: FreeholdLocal Authority: DurhamConservation Area: NoFlood Risk:Rivers & Seas: No RiskSurface Water: Low
MHMRC Requirements
HMRC is a supervisory body for money laundering regulations, of which all estate agents need to be registered with. As part of this, there are multiple requirements that agents must rigorously and consistently meet to ensure they stay compliant with the regulations and protect their clients. To do this, we use an identity verification service, approved by the Government as part of the Digital Identity and Attributes Trust Framework (DIATF). This method and the process we follow to ensure compliance for your transaction come with significant time, financial and legal implications hence a portion of this is passed on to our clients. We elected for this verification process due to the speed, certainty, and accuracy it delivers. This helps us to protect all our client's interests by using the most advanced verification process to help prevent the impacts of money laundering alongside our internal manual policies and procedures while staying compliant with HMRC.
IMPORTANT NOTE TO POTENTIAL PURCHASERS:
We endeavour to make our particulars accurate and reliable, however, they do not constitute or form part of an offer or any contract and none is to be relied upon as statements of representation or fact. The services, systems and appliances listed in this specification have not been tested by us and no guarantee as to their operating ability or efficiency is given. All photographs and measurements have been taken as a guide only and are not precise. Floor plans where included are not to scale and accuracy is not guaranteed. If you require clarification or further information on any points, please contact us, especially if you are travelling some distance to view. Fixtures and fittings other than those mentioned are to be agreed with the seller.
The Valley, East Hedley Hope, Durham, DL13
Additional Information
-
Property refDCI240427
-
EPCE
-
TenureFreehold
-
Council TaxC
-
Local authorityDurham City Council
Similar properties for sale by Reeds Rains Durham City
Natural light coming from patio doors to the front and a double glazed window, light the room. Heated by a radiator and an electric fireplace. With doorway into the kitchen/diner. Featuring a solid wood floor.
Fabulous modern kitchen with stone worktops and laminate units which house fully integrated units including the oven and induction hob, microwave, dishwasher, plumbed in washer and a fridge/freezer. With a double radiator, a window to the rear, rear access via UPVc door, and a storage cupboard under the stairs. With EvoCore Premium Flooring.
Carpeted double bedroom with a Juliet balcony to the front. With an en-suite bathroom.
Four-piece-suite with a large corner bath, walk-in shower, toilet, and sink Also containing a radiator, an extractor fan, and a frosted window to the rear.
The pin shows the exact address of the property
Energy Efficiency Rating
Very energy efficient - lower running costs
Not energy efficient - higher running costs
Current
48Potential
72CO2 Rating
Very energy efficient - lower running costs
Not energy efficient - higher running costs
