This calculator provides a guide to the amount of residential stamp duty you may pay and does not guarantee this will be the actual cost. This calculation is based on the Stamp Duty Land Tax Rates for residential properties purchased from 23rd September 2022 and second homes from 31st October 2024. For more information on Stamp Duty Land Tax, click here.
2 bedroom Semi Detached Bungalow for sale, Astral Way, Sutton-on-Hull, East Riding of Yorkshi, HU7
Features and Description
- Rarely available, fully refurbished two-bedroom bungalow with high contemporary finishes.
- Thoughtfully extended to create a stylish and spacious single-level home.
- Comprehensive transformation completed over the past 12 months, move-in ready.
- No onward chain – an effortless purchase opportunity.
- Close to the highly sought-after Sutton village with local amenities and historic charm.
- Excellent public transport links providing direct access to the city centre and beyond.
- L-shaped central entrance hall leading to bright and airy accommodation throughout.
- Generous sitting room positioned at the rear, flooded with natural light.
- Spacious dining room with windows in two directions, flowing seamlessly into a modern open-plan kitchen with built-in cooking appliances.
- Two well-proportioned bedrooms and a fully refurbished shower room.
- Gardens offering a blank canvas and single garage.
- Gas central heating, double glazing, Council Tax band B, EPC rating D.
It is a rare treat to encounter a bungalow that seamlessly blends style and modern sophistication, and this beautifully refurbished two-bedroom home certainly fits the bill. Thoughtfully extended and updated in recent times, every corner of this property reflects a contemporary standard, creating a living space that is as stylish as it is inviting. This is a home that simply cannot fail to impress.
Over the past year or so, the current owner has undertaken a thorough programme of transformation, ensuring every detail has been carefully considered and executed to the highest standard. The result is a home that feels fresh, elegant, and move-in ready. A detailed viewing is strongly recommended to fully appreciate the quality of the work and the sense of space throughout. With no onward chain, this property is available for an effortless transition.
Nestled close to the highly sought-after and historically charming village of Sutton, the property enjoys a prime residential location. Local amenities are just a short stroll away, and excellent public transport links provide direct access to the city centre and beyond.
Inside, the bungalow offers bright and thoughtfully designed single-level accommodation. An L-shaped central entrance hall welcomes you into the home, leading to a naturally light and airy sitting room at the rear. The generous dining room, positioned to capture light from two directions, flows effortlessly into a contemporary open-plan kitchen fitted with built-in cooking appliances, creating a perfect space for entertaining or relaxed family living.
Two well-proportioned bedrooms offer comfort, while the fully refurbished shower room provides a stylish finishing touch to the home’s modern interiors.
Outside, the gardens present a blank canvas, offering endless possibilities for planting, landscaping, or creating a personal outdoor retreat.
A side drive leads to a single garage adding practicality to the property.
With gas central heating, double glazing, and a layout designed for modern living, this bungalow is ready to enjoy from day one. Council tax is band B payable to Hull City Council and the property carries an EPC rating of D.
We are thrilled to bring this exceptional home to the market and strongly encourage a detailed inspection to truly appreciate everything it has to offer.
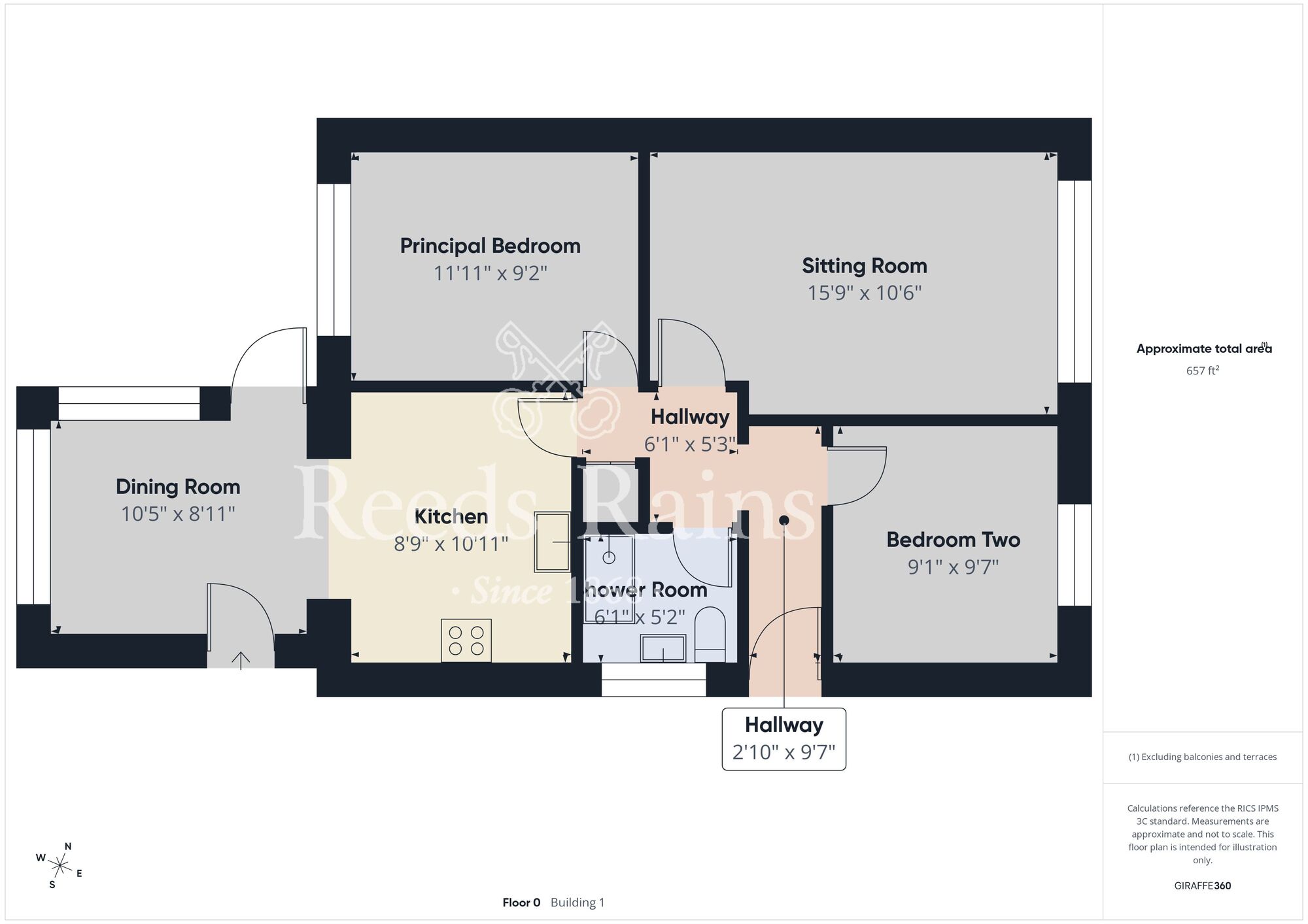
Entrance Hall
Step inside and you’re greeted by a welcoming L-shaped hallway that acts as the home’s central hub connecting every room with ease. Practical too, with built-in storage, access to the loft, and a radiator to keep things cosy.
Sitting Room
15'9" x 10'6" (4.80m x 3.20m)
A generously sized space designed for both feet-up relaxation and lively entertaining. Natural light pours in through the large double-glazed window, while charming ceiling details—including coving and a ceiling rose—add a touch of classic character.
Dining Room
10'5" x 8'11" (3.18m x 2.72m)
Extended to the rear and wonderfully versatile, this is a space that adapts to your lifestyle—formal dinners, relaxed brunches, or an extra lounging zone. With windows to the side and rear, plus doors opening to the driveway and directly to the garden, it blurs the line between indoors and out beautifully. Finished with laminate flooring, spotlights, and even a ceiling window for extra daylight. Flows seamlessly through to the…
Kitchen
10'11" x 8'9" (3.33m x 2.67m)
Freshly fitted in 2025, this bright and practical kitchen features sleek contemporary units, complementary worktops, and built-in cooking appliances. There’s space for additional appliances, stylish spot lighting overhead to keep things light while you cook up a storm.
Principal Bedroom
11'11" x 9'2" (3.63m x 2.80m)
A calm and comfortable double bedroom retreat, overlooking the rear garden. Classic ceiling coving and a ceiling rose, while the generous proportions make it a lovely place to unwind.
Bedroom 2
9'7" x 9'1" (2.92m x 2.77m)
Another well-sized bedroom that happily wears many hats—guest room, family bedroom, or a peaceful home office. A front-facing window and radiator complete the picture.
Shower Room
6'1" x 5'2" (1.85m x 1.57m)
Refurbished in 2025 and full of flair, this trendy shower room boasts a walk-in shower with a luxurious drench head, a sleek high-gloss vanity unit with basin, and a concealed-cistern WC. Finished with a heated towel rail and a side window for natural ventilation.
Front Garden
A true blank canvas—ready for kerb appeal, planting schemes, or something uniquely yours.
Driveway
A driveway offering limited parking access, leading up to the garage.
Garage
16'10" x 8'7" (5.13m x 2.62m)
Single garage with an up-and-over door, complete with power and lighting—ideal for storage or hobbies.
Rear Garden
Outdoor space awaiting your imagination. Whether landscaped, lawned, or left wild and wonderful, this garden is ready to be personalised into your perfect outdoor escape.
Agent's Note
To fulfil the obligation to share material information, please follow the web link where you'll find a comprehensive document containing key facts for buyers, providing valuable insights related to the property that you'll undoubtedly find useful.
Agent's Note 2
HMRC is a supervisory body for money laundering regulations, of which all estate agents need to be registered. As part of this, there are multiple requirements that agents must rigorously and consistently meet to ensure they stay compliant with the regulations and protect their clients. To do this, we use an identity verification service, approved by the Government as part of the Digital Identity and Attributes Trust Framework (DIATF). This method and the process we follow to ensure compliance for your transaction come with significant time, financial and legal implications hence a portion of this is passed on. We elected for this verification process due to the speed, certainty, and accuracy it delivers. This helps us to protect all our client's interests by using the most advanced verification process to help prevent the impacts of money laundering alongside our internal manual policies and procedures while staying compliant with HMRC.
Agent's Note Two Continued
The administrative charge for this process is £40 plus VAT for a sole purchaser, £65 plus VAT for two purchasers and £75 plus VAT three or more purchasers.
IMPORTANT NOTE TO POTENTIAL PURCHASERS:
We endeavour to make our particulars accurate and reliable, however, they do not constitute or form part of an offer or any contract and none is to be relied upon as statements of representation or fact. The services, systems and appliances listed in this specification have not been tested by us and no guarantee as to their operating ability or efficiency is given. All photographs and measurements have been taken as a guide only and are not precise. Floor plans where included are not to scale and accuracy is not guaranteed. If you require clarification or further information on any points, please contact us, especially if you are travelling some distance to view. Fixtures and fittings other than those mentioned are to be agreed with the seller.
Astral Way, Sutton-on-Hull, East Riding of Yorkshi, HU7
Additional Information
-
Property refHUL250921
-
EPCD
-
TenureFreehold
-
Council TaxB
-
Local authorityHull City Council
Step inside and you’re greeted by a welcoming L-shaped hallway that acts as the home’s central hub connecting every room with ease. Practical too, with built-in storage, access to the loft, and a radiator to keep things cosy.
A generously sized space designed for both feet-up relaxation and lively entertaining. Natural light pours in through the large double-glazed window, while charming ceiling details—including coving and a ceiling rose—add a touch of classic character.
Extended to the rear and wonderfully versatile, this is a space that adapts to your lifestyle—formal dinners, relaxed brunches, or an extra lounging zone. With windows to the side and rear, plus doors opening to the driveway and directly to the garden, it blurs the line between indoors and out beautifully. Finished with laminate flooring, spotlights, and even a ceiling window for extra daylight. Flows seamlessly through to the…
Freshly fitted in 2025, this bright and practical kitchen features sleek contemporary units, complementary worktops, and built-in cooking appliances. There’s space for additional appliances, stylish spot lighting overhead to keep things light while you cook up a storm.
A calm and comfortable double bedroom retreat, overlooking the rear garden. Classic ceiling coving and a ceiling rose, while the generous proportions make it a lovely place to unwind.
Another well-sized bedroom that happily wears many hats—guest room, family bedroom, or a peaceful home office. A front-facing window and radiator complete the picture.
Refurbished in 2025 and full of flair, this trendy shower room boasts a walk-in shower with a luxurious drench head, a sleek high-gloss vanity unit with basin, and a concealed-cistern WC. Finished with a heated towel rail and a side window for natural ventilation.
A true blank canvas—ready for kerb appeal, planting schemes, or something uniquely yours.
Outdoor space awaiting your imagination. Whether landscaped, lawned, or left wild and wonderful, this garden is ready to be personalised into your perfect outdoor escape.
The pin shows the exact address of the property
Energy Efficiency Rating
Very energy efficient - lower running costs
Not energy efficient - higher running costs
Current
55Potential
78CO2 Rating
Very energy efficient - lower running costs
Not energy efficient - higher running costs
