This calculator provides a guide to the amount of residential stamp duty you may pay and does not guarantee this will be the actual cost. This calculation is based on the Stamp Duty Land Tax Rates for residential properties purchased from 23rd September 2022 and second homes from 31st October 2024. For more information on Stamp Duty Land Tax, click here.
5 bedroom Semi Detached House for sale, Bishops Close, Belmont, Durham, DH1
Features and Description
- Five Bedrooms
- Family Home
- Townhouse Living
- DH1 Postcode
- Well Presented
- Garage Conversion
Reeds Rains exclusively invite you to discover this five bedroom semi detached townhouse for sale in Belmont. The property, which has been improved since it was purchased, would make an idea family home. Set over three floors, the property boasts five bedrooms, and two receptions, with a WC, ensuite, and family bathroom. To the rear, there is a private enclosed garden and there is off-street parking on the drive at the front. To arrange a viewing, call us on 0191 384 1222.
Council Tax Band C
EPC Grade C
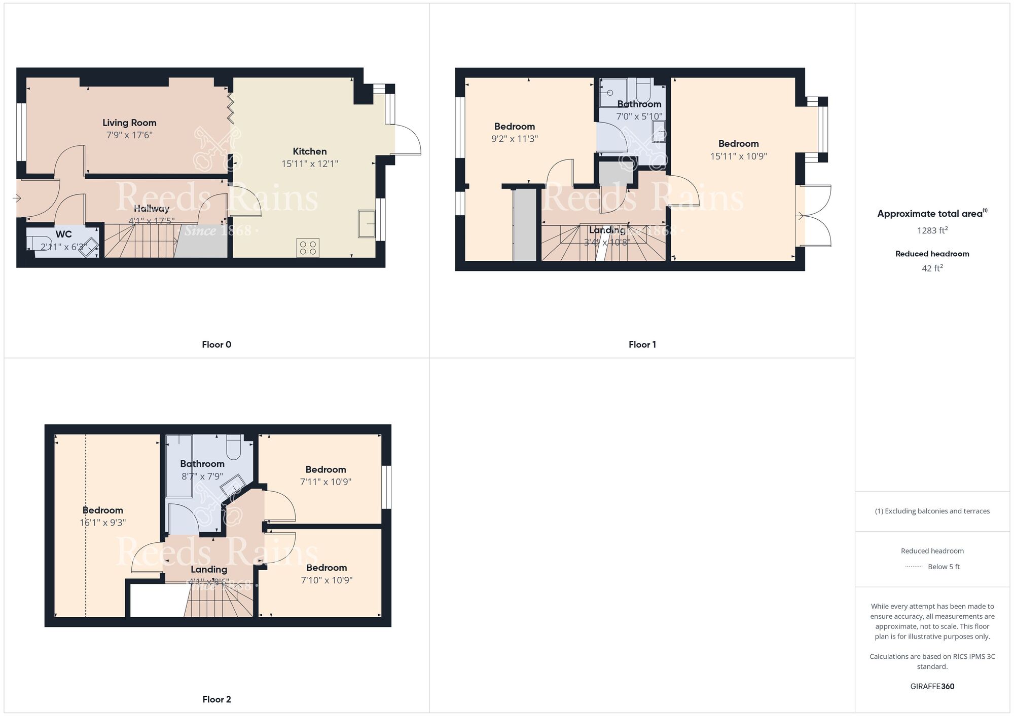
Entrance Hall
UPVc door to front with access into hallway, leading to kitchen/diner, WC, and first floor via staircase.
Kitchen / Diner
4.85mx3.68m
Laminate units and worktops house space for kitchen units and integrated appliances. With windows and a door to the rear.
Lounge
2.36mx5.33m
Living space with a window to the front.
WC
Featuring a toilet and sink.
First Floor Landing
Hallway leading to two bedrooms and to the second floor via staircase.
Bedroom 2
3.43mx2.8m
Carpeted double bedroom with two windows to the front, a walk in wardrobe and an ensuite, featuring a walk-in shower, a toilet, and a sink.
Bedroom 1
4.85mx3.28m
Carpeted double bedroom with a Juliette balcony and a bay window to the rear.
Second Floor Landing
Hallway leading to three bedrooms and a bathroom.
Bedroom 3
4.9mx2.82m
Double bedroom with velux windows to the front.
Bathroom
Featuring a bath with overhead shower, a toilet, and a sink.
Bedroom 4
2.4mx3.28m
Double bedroom with a window to the rear.
Bedroom 5
2.41mx3.28m
Double bedroom with a window to the rear.
External
A private enclosed garden to the rear and a drive to the front.
Additional Information
Floor Area 1,270 ft2/ 118 m2Plot Size 0.03 acresLocal Authority DurhamCouncil Tax Band CCouncil Tax Estimate £2,268Year Built 2010Flood RiskRivers & Seas: Very lowSurface Water: Very lowTitle Number DU326567Tenure Freehold
Agent's Note
HMRC is a supervisory body for money laundering regulations, of which all estate agents need to be registered. As part of this, there are multiple requirements that agents must rigorously and consistently meet to ensure they stay compliant with the regulations and protect their clients. To do this, we use an identity verification service, approved by the Government as part of the Digital Identity and Attributes Trust Framework (DIATF). This method and the process we follow to ensure compliance for your transaction come with significant time, financial and legal implications hence a portion of this is passed on to our clients. We elected for this verification process due to the speed, certainty, and accuracy it delivers. This helps us to protect all our client's interests by using the most advanced verification process to help prevent the impacts of money laundering alongside our internal manual policies and procedures while staying compliant with HMRC.
The administrative charge for this process is £40 plus VAT for a sole purchaser, £65 plus VAT for two purchasers and £75 plus VAT three or more purchasers.
IMPORTANT NOTE TO POTENTIAL PURCHASERS:
We endeavour to make our particulars accurate and reliable, however, they do not constitute or form part of an offer or any contract and none is to be relied upon as statements of representation or fact. The services, systems and appliances listed in this specification have not been tested by us and no guarantee as to their operating ability or efficiency is given. All photographs and measurements have been taken as a guide only and are not precise. Floor plans where included are not to scale and accuracy is not guaranteed. If you require clarification or further information on any points, please contact us, especially if you are travelling some distance to view. Fixtures and fittings other than those mentioned are to be agreed with the seller.
Bishops Close, Belmont, Durham, DH1
Additional Information
-
Property refDCI250377
-
EPCC
-
TenureFreehold
-
Council TaxC
-
Local authorityDurham City Council
Similar properties for sale by Reeds Rains Durham City
The pin shows the exact address of the property
Energy Efficiency Rating
Very energy efficient - lower running costs
Not energy efficient - higher running costs
Current
75Potential
86CO2 Rating
Very energy efficient - lower running costs
Not energy efficient - higher running costs
