This calculator provides a guide to the amount of residential stamp duty you may pay and does not guarantee this will be the actual cost. This calculation is based on the Stamp Duty Land Tax Rates for residential properties purchased from 23rd September 2022 and second homes from 31st October 2024. For more information on Stamp Duty Land Tax, click here.
4 bedroom Semi Detached House for sale, Nelson Walk, Whitworth, Durham, DL16
Features and Description
- Four Bedrooms
- Semi Detached Townhouse
- Popular Location
- Resident's Parking
- Generous Garden
- Three Floors
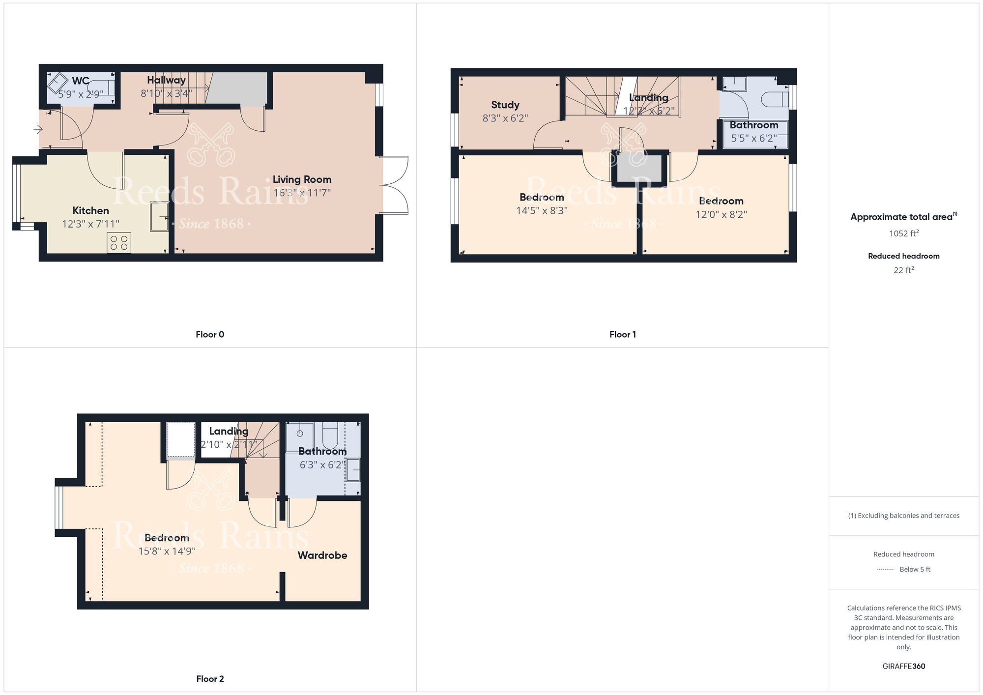
Reeds Rains exclusively invite you to discover this fantastic four bedroom semi detached house for sale in Spennymoor. Set over three floors and benefitting from a larger than average garden, the house would make an ideal family home. The ground floor briefly comprises a kitchen, living room, and WC, while on the first floor there are three bedrooms and a family bathroom, and a final bedroom on the second floor. To the rear of the property is a generous garden and access to resident's parking with garage, and the front of the property is pedestrianised, so affords additional privacy. To arrange a viewing call us on 0191 384 1222.
Council Tax Band C
EPC Grade C
Entrance Hall
UPVc door to the front leads into hallway, with access to kitchen, lounge, WC, and first floor via staircase.
Kitchen
3.73mx2.41m
Units and worktops house integrated appliances and space for storage of kitchen items. With a breakfast bar and a window to the front.
Lounge
4.95mx3.53m
Spacious living area with patio doors to the rear.
WC
Featuring a toilet and sink.
First Floor Landing
Hallway leading to three bedrooms, a family bathroom, and the second floor via staircase.
Bedroom
3.66mx2.5m
Double bedroom with a window to the rear.
Bedroom
4.4mx2.51m
Double bedroom with a window to the front.
Bedroom
2.51mx1.88m
Bedroom with a window to the front, currently used as an office.
Family Bathroom
Featuring a bath, a toilet, a sink, and a frosted window to the rear.
Master Bedroom
4.78mx4.5m
On the second floor, with built in storage, velux windows to the front and rear, and an ensuite, featuring a walk-in shower, a toilet, a sink, and a velux window to the rear.
External
A generous garden to the rear, and pedestrianised access to the front.
Additional Information
Plot Size 0.08 acresLocal Authority DurhamCouncil Tax Band Band CCouncil Tax Estimate £2,268Year Built 2011Flood RiskRivers & Seas: Very lowSurface Water: Very lowTenure Freehold
Agent's Note
HMRC is a supervisory body for money laundering regulations, of which all estate agents need to be registered. As part of this, there are multiple requirements that agents must rigorously and consistently meet to ensure they stay compliant with the regulations and protect their clients. To do this, we use an identity verification service, approved by the Government as part of the Digital Identity and Attributes Trust Framework (DIATF). This method and the process we follow to ensure compliance for your transaction come with significant time, financial and legal implications hence a portion of this is passed on to our clients. We elected for this verification process due to the speed, certainty, and accuracy it delivers. This helps us to protect all our client's interests by using the most advanced verification process to help prevent the impacts of money laundering alongside our internal manual policies and procedures while staying compliant with HMRC.
The administrative charge for this process is £40 plus VAT for a sole purchaser, £65 plus VAT for two purchasers and £75 plus VAT three or more purchasers.
IMPORTANT NOTE TO POTENTIAL PURCHASERS:
We endeavour to make our particulars accurate and reliable, however, they do not constitute or form part of an offer or any contract and none is to be relied upon as statements of representation or fact. The services, systems and appliances listed in this specification have not been tested by us and no guarantee as to their operating ability or efficiency is given. All photographs and measurements have been taken as a guide only and are not precise. Floor plans where included are not to scale and accuracy is not guaranteed. If you require clarification or further information on any points, please contact us, especially if you are travelling some distance to view. Fixtures and fittings other than those mentioned are to be agreed with the seller.
Nelson Walk, Whitworth, Durham, DL16
Additional Information
-
Property refDCI250504
-
EPCC
-
TenureFreehold
-
Council TaxC
-
Local authorityDurham City Council
Similar properties for sale by Reeds Rains Durham City
The pin shows the exact address of the property
Energy Efficiency Rating
Very energy efficient - lower running costs
Not energy efficient - higher running costs
Current
80Potential
84CO2 Rating
Very energy efficient - lower running costs
Not energy efficient - higher running costs
