This calculator provides a guide to the amount of residential stamp duty you may pay and does not guarantee this will be the actual cost. This calculation is based on the Stamp Duty Land Tax Rates for residential properties purchased from 23rd September 2022 and second homes from 31st October 2024. For more information on Stamp Duty Land Tax, click here.


















3 bedroom Semi Detached House for sale, Pear Tree Gardens, Penwortham, Lancashire, PR1
Features and Description
- Three Bedrooms
- Spacious Lounge with media wall
- Kitchen/Dining Room
- Ensuite Shower Room
- WC
- Landscaped garden
Situated on a modern development, this stylish semi detached home is finished to an excellent standard throughout. The property boasts a contemporary kitchen, a spacious lounge with feature media wall and dining area, three well-proportioned bedrooms, and a modern family bathroom.
Externally, the property benefits from a driveway with detached garage, landscaped rear garden with artificial lawn and patio area, and attractive kerb appeal to the front.
Perfect for families or professionals alike, this home offers modern living in a sought-after location close to local amenities, schools and transport links.
Council Tax Band - C / Freehold / EPC Rating - B
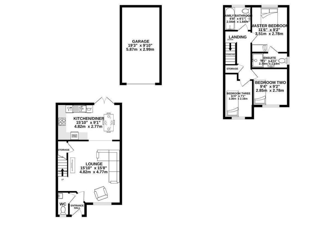
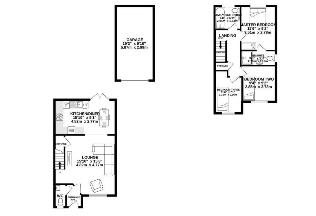
Lounge
15'7" x 14'11" (4.75m x 4.55m)
High quality Amtico flooring with staircase leading to the first floor, blind and media wall. Open aspect leading through to the kitchen/diner
Kitchen / Dining Room
14'2" x 9'1" (4.32m x 2.77m)
High quality Amtico flooring with patio doors leading to the rear garden and blind. A range of fitted kitchen units, worktops and integrated oven, hob, hood, fridge-freezer and washing machine
WC
High quality Amtico flooring with 2 piece bathroom suite in white and radiator
Master Bedroom
11'5" x 9'1" (3.48m x 2.77m)
Carpet flooring with window to the rear elevation, fitted wardrobes and blind
En-Suite Shower Room
Tile flooring with 2 piece bathroom suite in white, separate showering enclosure, spotlighting and radiator
Bedroom 2
9'5" x 8'1" (2.87m x 2.46m)
Carpet flooring with window to the front elevation, fitted wardrobes and blind
Bedroom 3
9'7" x 7'4" (2.92m x 2.24m)
Carpet flooring with window to the front elevation, fitted wardrobes and blind
Family Bathroom
Tile flooring with 3 piece bathroom suite in white, spotlighting, partially tiled decor and radiator
External
Lovely landscaped rear garden, enclosed by panel fencing with patio area and artificial lawn. Large tandem driveway, capable of accommodating 3 vehicles leading to a detached single garage.
IMPORTANT NOTE TO POTENTIAL PURCHASERS:
We endeavour to make our particulars accurate and reliable, however, they do not constitute or form part of an offer or any contract and none is to be relied upon as statements of representation or fact. The services, systems and appliances listed in this specification have not been tested by us and no guarantee as to their operating ability or efficiency is given. All photographs and measurements have been taken as a guide only and are not precise. Floor plans where included are not to scale and accuracy is not guaranteed. If you require clarification or further information on any points, please contact us, especially if you are travelling some distance to view. Fixtures and fittings other than those mentioned are to be agreed with the seller.
Pear Tree Gardens, Penwortham, Lancashire, PR1

Additional Information
-
Property refBBR250332
-
EPCB
-
Council TaxC
-
Local authorityPreston City Council

Similar properties for sale by Reeds Rains Bamber Bridge


















The pin shows the exact address of the property
Energy Efficiency Rating
Very energy efficient - lower running costs
Not energy efficient - higher running costs
Current
84Potential
95CO2 Rating
Very energy efficient - lower running costs
Not energy efficient - higher running costs