This calculator provides a guide to the amount of residential stamp duty you may pay and does not guarantee this will be the actual cost. This calculation is based on the Stamp Duty Land Tax Rates for residential properties purchased from 23rd September 2022 and second homes from 31st October 2024. For more information on Stamp Duty Land Tax, click here.
3 bedroom Semi Detached Property for sale, Clevedon Road, Portishead, Bristol, BS20
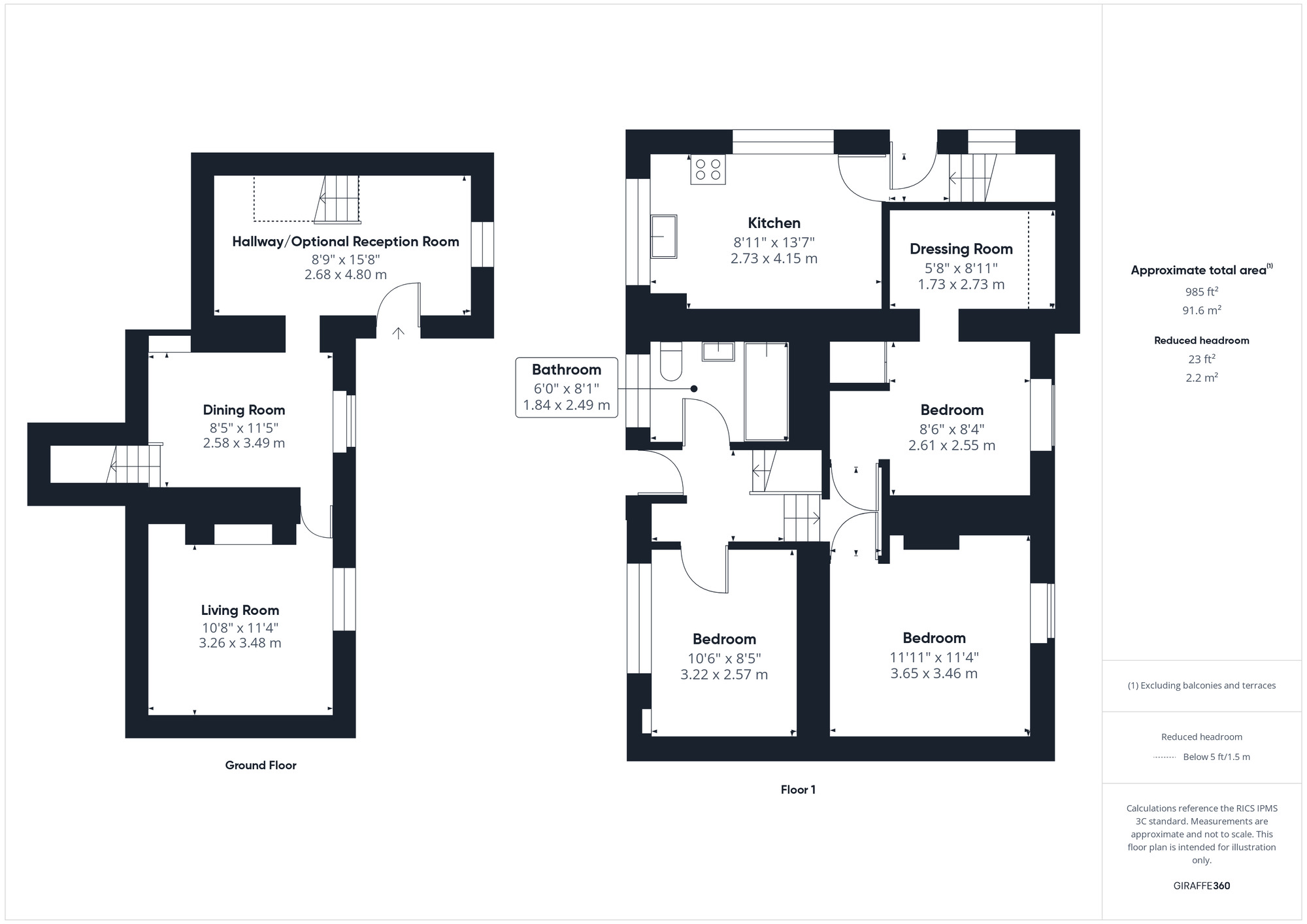
Features and Description
- Charming Semi-Detached Cottage
- Peaceful & Secluded Location
- Three Double Bedrooms
- Dressing Room / Study Area
- Two/Three Reception Rooms
- Fitted Kitchen & Bathroom
- Generous Size Garden
- Shared Driveway / Off Street Parking
- Full Refurbishment Required
A characterful semi-detached cottage nestled in a peaceful and secluded position on the southern fringes of Portishead. The scenic surroundings create a picturesque setting, perfect for those seeking a quiet semi-rural lifestyle. The property requires full renovation, creating an exciting opportunity and lots of potential to enhance the existing accommodation. In brief, there are currently two/three reception rooms, fitted kitchen, three double bedrooms, dressing room/study area and family bathroom. There is also useful storage space in a void under the first floor level, accessible from the landing area. Outside, there are lovely established gardens, providing a private and sunny outdoor space to relax or entertain guests. In addition, there is a shared driveway leading to the front of the property with gravelled area offering parking for two cars. This property is offered chain-free, ideal for those looking to move in quickly and hassle-free. Contact us today to arrange a viewing and experience the charm of this idyllic property.
Agents note:- There is a public right of way across the front driveway allowing access on foot into the woods.
IMPORTANT NOTE TO POTENTIAL PURCHASERS:
We endeavour to make our particulars accurate and reliable, however, they do not constitute or form part of an offer or any contract and none is to be relied upon as statements of representation or fact. The services, systems and appliances listed in this specification have not been tested by us and no guarantee as to their operating ability or efficiency is given. All photographs and measurements have been taken as a guide only and are not precise. Floor plans where included are not to scale and accuracy is not guaranteed. If you require clarification or further information on any points, please contact us, especially if you are travelling some distance to view. Fixtures and fittings other than those mentioned are to be agreed with the seller.
Clevedon Road, Portishead, Bristol, BS20
Additional Information
-
Property refPOR250172
-
EPCE
-
TenureFreehold
-
Council TaxE
-
Local authorityNorth Somerset Council
Similar properties for sale by Reeds Rains Portishead
The pin shows the exact address of the property
Energy Efficiency Rating
Very energy efficient - lower running costs
Not energy efficient - higher running costs
Current
54Potential
70CO2 Rating
Very energy efficient - lower running costs
Not energy efficient - higher running costs
