This calculator provides a guide to the amount of residential stamp duty you may pay and does not guarantee this will be the actual cost. This calculation is based on the Stamp Duty Land Tax Rates for residential properties purchased from 23rd September 2022 and second homes from 31st October 2024. For more information on Stamp Duty Land Tax, click here.
3 bedroom Detached Bungalow for sale, Rushyford, Ferryhill, Durham, DL17
Features and Description
- Unique Property
- Three Bedrooms
- Former School
- Triple Garage
- Historic Links
- Extensive Gardens
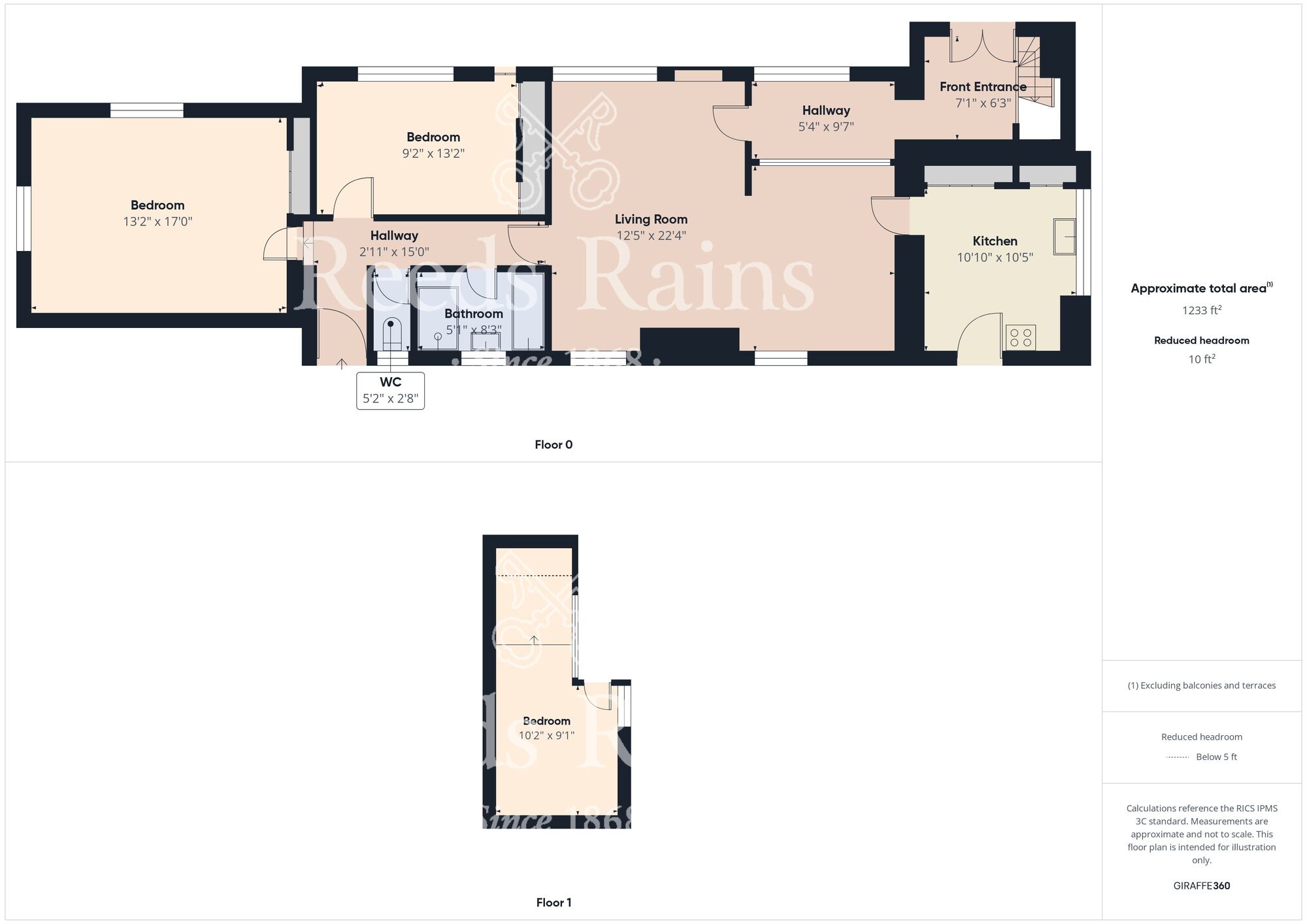
Reeds Rains exclusively invite you to discover this unique three bedroom detached bungalow. The property, as a former school, boasts a rich history with links to former Prime Minister Anthony Eden, and would appeal to a variety of buyers, whether that be to live in or to explore the development possibilities. The ground floor briefly comprises a kitchen, lounge, bathroom, WC, and two bedrooms, while the attic has been partly converted to accommodate another bedroom. To the front of the property is a generous garden, and to the rear is a courtyard with a triple garage and an outhouse. To arrange a viewing call us on 0191 384 1222.
Council Tax Band E
EPC E
Entrance Hall
Door to the front leading into internal hallway, with access to lounge and attic bedroom.
Lounge
3.78mx6.8m
Spacious living room with windows to the front and rear.
Kitchen
3.3mx3.18m
Laminate units and worktops house integrated appliances and space for kitchen items. With windows to the side and a door to the rear.
Hallway
Leading to the lounge, two bedrooms, a bathroom and a WC.
Bedroom
2.8mx4.01m
Double bedroom with a window to the front and fitted wardrobes.
Bedroom
4.01mx5.18m
Spacious double bedroom with windows to the side and front.
Bathroom
Featuring a bath, a walk-in shower, a sink, and a frosted window to the rear.
WC
Featuring a toilet and a frosted window to the rear.
Attic Bedroom
3.1mx2.77m
Double bedroom with a window to the side.
External
Courtyard to the rear with a triple garage and an outhouse, and a generous garden to the front.
Additional Information
Plot Size 0.22 acresLocal Authority DurhamCouncil Tax Band ECouncil Tax Estimate £3,118Flood RiskRivers & Seas: Very lowSurface Water: Very lowLand RegistryTenure Freehold
Agent's Note
HMRC is a supervisory body for money laundering regulations, of which all estate agents need to be registered. As part of this, there are multiple requirements that agents must rigorously and consistently meet to ensure they stay compliant with the regulations and protect their clients. To do this, we use an identity verification service, approved by the Government as part of the Digital Identity and Attributes Trust Framework (DIATF). This method and the process we follow to ensure compliance for your transaction come with significant time, financial and legal implications hence a portion of this is passed on to our clients. We elected for this verification process due to the speed, certainty, and accuracy it delivers. This helps us to protect all our client's interests by using the most advanced verification process to help prevent the impacts of money laundering alongside our internal manual policies and procedures while staying compliant with HMRC.
The administrative charge for this process is £40 plus VAT for a sole purchaser, £65 plus VAT for two purchasers and £75 plus VAT three or more purchasers.
IMPORTANT NOTE TO POTENTIAL PURCHASERS:
We endeavour to make our particulars accurate and reliable, however, they do not constitute or form part of an offer or any contract and none is to be relied upon as statements of representation or fact. The services, systems and appliances listed in this specification have not been tested by us and no guarantee as to their operating ability or efficiency is given. All photographs and measurements have been taken as a guide only and are not precise. Floor plans where included are not to scale and accuracy is not guaranteed. If you require clarification or further information on any points, please contact us, especially if you are travelling some distance to view. Fixtures and fittings other than those mentioned are to be agreed with the seller.
Rushyford, Ferryhill, Durham, DL17
Additional Information
-
Property refDCI250281
-
EPCE
-
TenureFreehold
-
Council TaxE
-
Local authorityDurham City Council
Similar properties for sale by Reeds Rains Durham City
The pin shows the exact address of the property
Energy Efficiency Rating
Very energy efficient - lower running costs
Not energy efficient - higher running costs
Current
52Potential
79CO2 Rating
Very energy efficient - lower running costs
Not energy efficient - higher running costs
