Main image of 4 bedroom Detached House for sale, Goldcrest Avenue, Farington Moss, Lancashire, PR26
Image 2
Image 3
Image 4
Image 5
Image 6
Image 7
Image 8
Image 9
Image 10
£330,000 Asking price

4 bedroom Detached House for sale,
Goldcrest Avenue, Farington Moss, Lancashire, PR26

Features and Description

  • NHBC WARRANTY
  • FREEHOLD
  • NO CHAIN
  • PX AVAILABLE
  • EASY MOVE AVAILABLE
  • CLOSE TO TRANSPORT LINKS AND AMENITIES

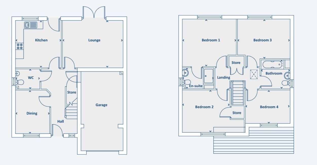
"The Meldon" is a stunning four bedroom detached home with accommodation comprising of entrance hallway, lounge, kitchen with separate dining room and ground floor WC to the ground floor. To the first floor there are four bedrooms with ensuite shower room to bedroom one and family bathroom. There is an integral garage and driveway parking. Rear garden.

£1,000 Towards Legal Fees

ENHANCEMENTS

Upgraded Kitchen Unit Doors and Integrated Appliances.

This home benefits from PV Panels

Electric car charging point

Four bedroom detached home

1,252.87 sq.ft of living space

Master bedroom with En-Suite

Integral garage with access from inside of home

Energy efficient boiler

Dual zone heating system (each floor independently programmable)

Convenient downstairs W.C.

Lounge

14'9" x 11'7" (4.50m x 3.53m)

Goldcrest Avenue, Farington Moss, Lancashire, PR26

Additional Information

  • Property ref
    LEY240181
  • Tenure
    Freehold
  • Council Tax
    NA
Roy Sermon Branch Manager
Roy Sermon
Branch Manager

Do you have a property you need to sell?

Book a free valuation to get an accurate valuation of how much your home is worth or get an online valuation in under 30 seconds.

Reeds Rains Estate Agents Leyland

Leyland Branch Manager
Reeds Rains Leyland
20 Hough Lane, Leyland, PR25 2SD
Mon - Fri09:00 - 17:30Saturday09:00 - 16:00SundayClosed
Disabled access available

Mortgage Calculator

Monthly payment

£

Borrowing £297,000 and repaying over 25 years with a 2.5% interest rate.

Now you know what you could be paying, book an appointment with our partners Embrace Financial Services to find the right mortgage for you.

Stamp duty calculator

Calculate

You would pay

This calculator provides a guide to the amount of residential stamp duty you may pay and does not guarantee this will be the actual cost. This calculation is based on the Stamp Duty Land Tax Rates for residential properties purchased from 23rd September 2022 and second homes from 31st October 2024. For more information on Stamp Duty Land Tax, click here.

Nearby locations
Photos
Floorplan
Map view
Street view

The pin shows the exact address of the property 

Energy Efficiency Rating

Very energy efficient - lower running costs

(92 plus) A
(81 - 91) B
(69 - 80) C
(55 - 68) D
(39 - 54) E
(21 - 38) F
(1 - 20) G

Not energy efficient - higher running costs

Current

N/A

Potential

N/A

CO2 Rating

Very energy efficient - lower running costs

(92 plus) A
(81 - 91) B
(69 - 80) C
(55 - 68) D
(39 - 54) E
(21 - 38) F
(1 - 20) G

Not energy efficient - higher running costs

Current

N/A

Potential

N/A