This calculator provides a guide to the amount of residential stamp duty you may pay and does not guarantee this will be the actual cost. This calculation is based on the Stamp Duty Land Tax Rates for residential properties purchased from 23rd September 2022 and second homes from 31st October 2024. For more information on Stamp Duty Land Tax, click here.
2 bedroom End Terrace House for sale, Brook Street, Macclesfield, Cheshire, SK11
Features and Description
- Two bedroom end terrace cottage
- Walking distance to Macclesfield Train Station and the town centre
- Wood burning stove in the front room for those colder nights
- Additional storage space in the cellar
- Private rear yard and additional garden area ideal for open air dining or barbeques in the summer
- Could be an ideal first purchase or buy to let investment
- On street parking could be available in a variety of places close by
- Gas central heating and majority UPVC double glazing
This charming two bedroom, end terrace property provides the characterful features of a cottage with all the modern conveniences on your doorstep.
Located just a 0.3 mile walk from Macclesfield train station (which lies on the mainline for both Manchester, 22mins, and London, 1hr 42) the property is in prime position for any commuting professionals. In the same breath, it could also mean that any investors will rarely have an empty property, with such locations always in demand.
The property itself is deceptively spacious, with two reception rooms downstairs, a cellar ideal for storage, and a generous main bedroom. The second bedroom is well suited to a guest room, nursery or office, and the bathroom is again of reasonable proportions.
While there is no allocated parking, this property benefits from being in an area with plenty of on street opportunities on both Brook Street itself, and Turnock Street to the side.
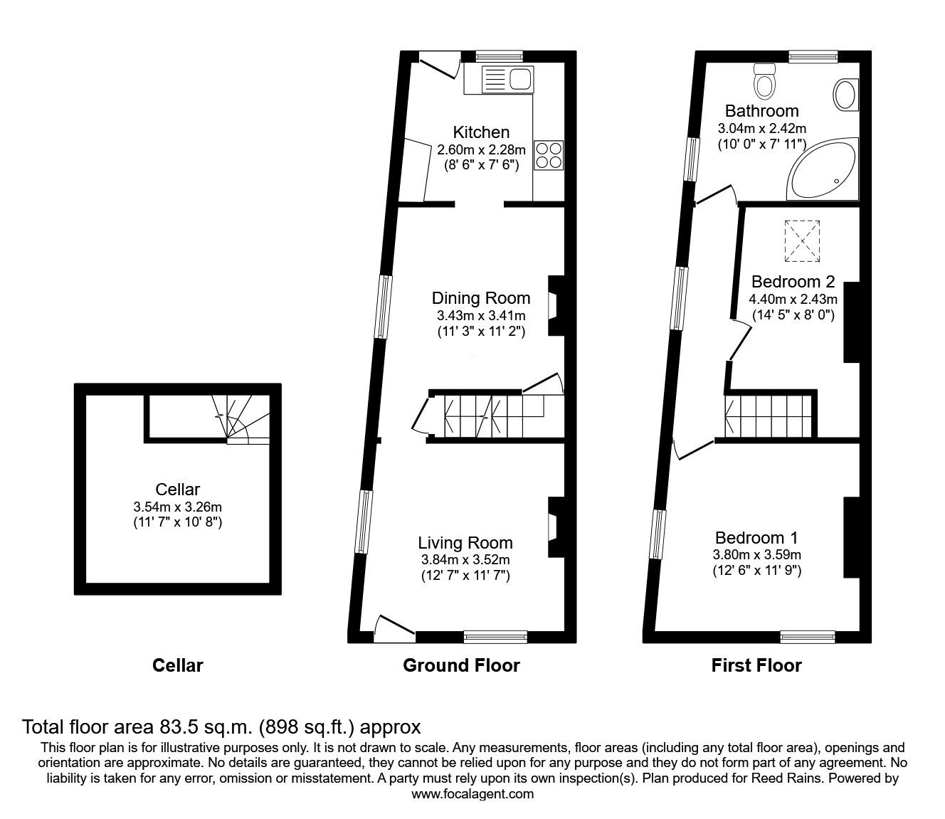
The property comprises in brief; to the ground floor living room, dining room, kitchen, Cellar and the first floor accessed off the landing, two bedrooms and the bathroom.
Living Room
3.78m max x 3.48m max
Composite entrance door with frosted panel. UPVC double glazed window to the front and UPVC double glazed frosted window to the side. The natural focal point of the room is the wood burning stove, sat within a brick chamber in the chimney breast. Radiator. Wood effect flooring. Picture rail.
Dining Room
3.38m max x 3.2m max
Door to stairs leading to cellar. Chimney breast with feature recess and brick mantle. UPVC double glazed frosted window to the side. Radiator. Wood effect flooring continued. Picture rail. Stairs to first floor.
Kitchen
2.87m max x 2.57m max
Good selection of base, wall and drawer units with wood effect work surface incorporating a stainless steel single drainer sink unit with mixer tap and four ring electric hob with oven below. Space for washing machine. Space for tall standing fridge freezer. UPVC entrance door opening onto the rear yard with double glazed panel. UPVC double glazed window next to the door. Tile splashbacks. Wood effect floor.
CELLAR
Providing valuable storage. Containing the electric consumer unit, electricity meter and gas meter. Lighting.
Landing
Large UPVC double glazed window to the side aspect.
Bedroom 1
3.45m max x 3.48m
Radiator. UPVC double glazed window to the front. Round 'Porthole' window to the side. Carpet.
Bedroom 2
4.14m max into alcove x 2m max
Carpet. Radiator. Velux window providing plenty of natural light.
Bathroom
2.34m x 2.87m max
White three piece suite comprising WC, wash basin and four claw bath with mixer tap and shower head attachment. Radiator. Two UPVC double glazed frosted windows. Tile effect floor. Part tiled walls.
Outside
To the rear, there is a small paved yard, suitable for al fresco dining or barbeques in the summer. The yard is bordered/enclosed by a combination of fence panels and brick wall. There is a gate to the rear providing access into the ginnel and from there onto Turnock Street.Through the rear gate, the property also owns a further section of land, that could be utilised for a lovely seating area, or space for a small shed/greenhouse. Both the yard and additional space enjoy a fantastic SOUTH FACING aspect, making the most of the sun. The front of the property is set neatly behind a further paved area, with dwarf wall and low level fencing.
Directions
From our office proceed down the hill turning left onto Waters Green and right at the T junction onto Sunderland Street. Proceed through the first set of traffic lights at the crossroads and take the 2nd left after onto Brook Street. Proceed uphill and continue through the traffic lights at the cross roads continuing along Brook Street. The property can be found on the right hand side at the end of a row of terraces where Brook Street meets Turnock Street.
Agents Note
We are advised the Council tax band is B payable to Cheshire East Council. We are advised the property tenure is Freehold.To be able to purchase a property in the United Kingdom all agents have a legal requirement to conduct Identity checks on all customers involved in the transaction to fulfil their obligations under Anti Money Laundering regulations. We outsource this check to a third party and a charge will apply. Ask the branch for further details.
IMPORTANT NOTE TO POTENTIAL PURCHASERS:
We endeavour to make our particulars accurate and reliable, however, they do not constitute or form part of an offer or any contract and none is to be relied upon as statements of representation or fact. The services, systems and appliances listed in this specification have not been tested by us and no guarantee as to their operating ability or efficiency is given. All photographs and measurements have been taken as a guide only and are not precise. Floor plans where included are not to scale and accuracy is not guaranteed. If you require clarification or further information on any points, please contact us, especially if you are travelling some distance to view. Fixtures and fittings other than those mentioned are to be agreed with the seller.
Brook Street, Macclesfield, Cheshire, SK11
Additional Information
-
Property refMAC250104
-
EPCD
-
TenureFreehold
-
Council TaxB
-
Local authorityCheshire East Council
Similar properties for sale by Reeds Rains Macclesfield
Composite entrance door with frosted panel. UPVC double glazed window to the front and UPVC double glazed frosted window to the side. The natural focal point of the room is the wood burning stove, sat within a brick chamber in the chimney breast. Radiator. Wood effect flooring. Picture rail.
Door to stairs leading to cellar. Chimney breast with feature recess and brick mantle. UPVC double glazed frosted window to the side. Radiator. Wood effect flooring continued. Picture rail. Stairs to first floor.
Good selection of base, wall and drawer units with wood effect work surface incorporating a stainless steel single drainer sink unit with mixer tap and four ring electric hob with oven below. Space for washing machine. Space for tall standing fridge freezer. UPVC entrance door opening onto the rear yard with double glazed panel. UPVC double glazed window next to the door. Tile splashbacks. Wood effect floor.
Radiator. UPVC double glazed window to the front. Round 'Porthole' window to the side. Carpet.
Carpet. Radiator. Velux window providing plenty of natural light.
White three piece suite comprising WC, wash basin and four claw bath with mixer tap and shower head attachment. Radiator. Two UPVC double glazed frosted windows. Tile effect floor. Part tiled walls.
To the rear, there is a small paved yard, suitable for al fresco dining or barbeques in the summer. The yard is bordered/enclosed by a combination of fence panels and brick wall. There is a gate to the rear providing access into the ginnel and from there onto Turnock Street.Through the rear gate, the property also owns a further section of land, that could be utilised for a lovely seating area, or space for a small shed/greenhouse. Both the yard and additional space enjoy a fantastic SOUTH FACING aspect, making the most of the sun. The front of the property is set neatly behind a further paved area, with dwarf wall and low level fencing.
The pin shows the exact address of the property
Energy Efficiency Rating
Very energy efficient - lower running costs
Not energy efficient - higher running costs
Current
55Potential
80CO2 Rating
Very energy efficient - lower running costs
Not energy efficient - higher running costs
