This calculator provides a guide to the amount of residential stamp duty you may pay and does not guarantee this will be the actual cost. This calculation is based on the Stamp Duty Land Tax Rates for residential properties purchased from 23rd September 2022 and second homes from 31st October 2024. For more information on Stamp Duty Land Tax, click here.
2 bedroom Flat for sale, Albemarle Back Road, Scarborough, North Yorkshire, YO11
Features and Description
Main Description
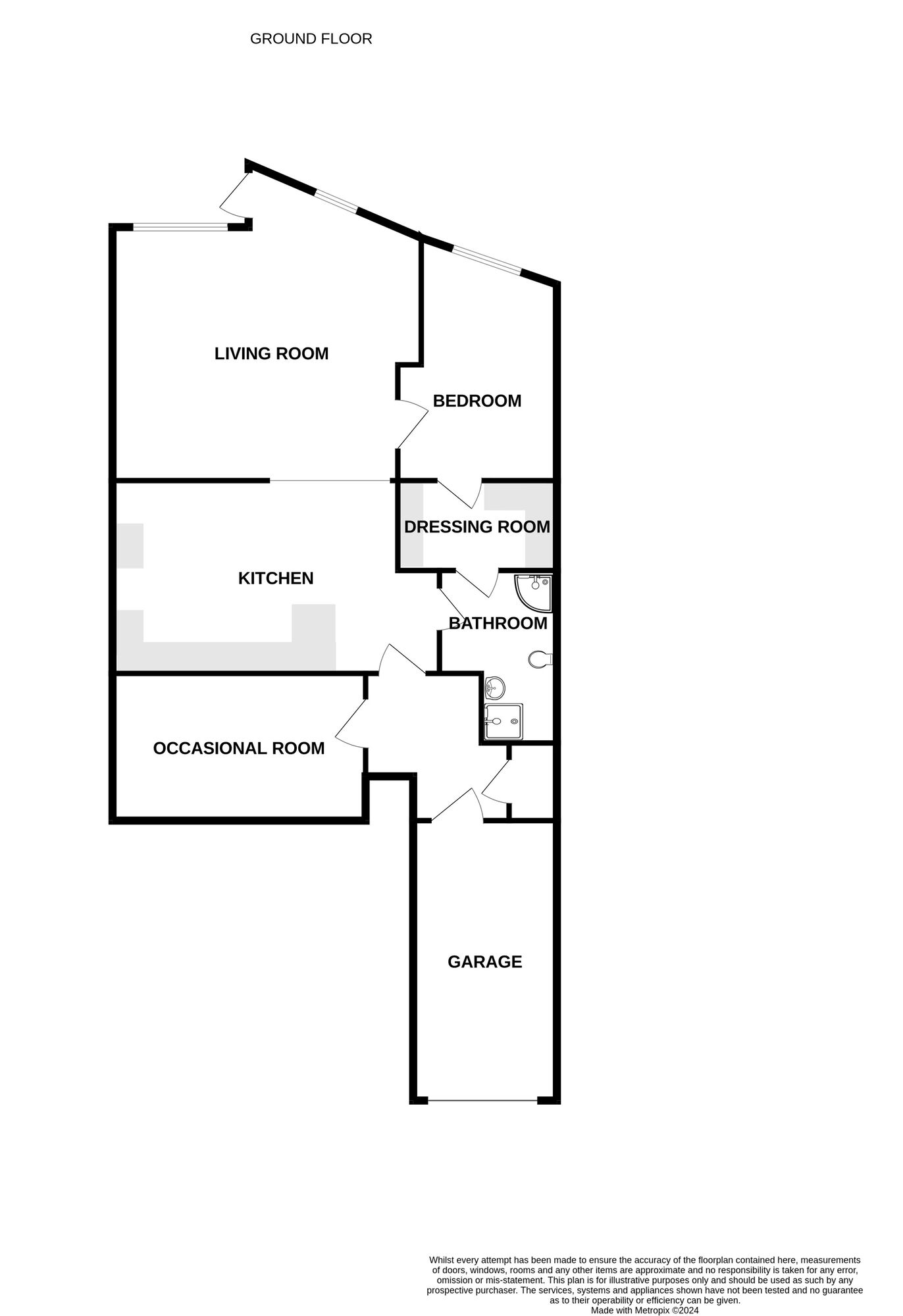
Offering for sale this one / two bedroom property that has been converted creating a contemporary ground floor apartment offering modern open plan living within walking distance of the Town Centre, the Railway station and wealth of local shops, services and facilities. The living accommodation is briefly comprised integral garage, inner hall / vestibule, spacious open plan style living room kitchen, occasional room, utility, double bedroom, walk-in wardrobe and a bathroom / shower room. The home is gas centrally heated, double glazed and a viewings are strictly by appointment only. FOR MORE INFORMATION ABOUT THIS PROPERTY OR TO ARRANGE A VIEWING PLEASE CALL REEDS RAINS ESTATE AND LETTING AGENTS SCARBOROUGH. Council Tax Band B. EPC GRADE D.
Ground Floor
Garage
A generous sized garage with power and lighting. Electric garage door. Door leading to a vestibule. Wall mounted gas boiler.
Vestibule
Oak flooring and a radiator. Doors leading to; the kitchen / living room, utility and occasional room.
Utility
Tumble dryer.
Occasional Room 15 ft 4 x 8 ft 8
Wardrobe and a built-in cupboard.
Open Plan Kitchen / Living Room 40 ft 0 x 15 ft 5
Kitchen Area 19 ft 7 - Max - 15 ft 9 - Min x 15 ft 9
A spacious kitchen offering a comprehensive range of wood effect wall and base units with contrasting work top surface rears with splash backs and incorporating an inset sink unit. Gas range cooker with an extractor over. Washing machine, dishwasher and a American style fridge / freezer. Oak flooring and a radiator. Door leading to the bathroom / shower room. Opening though to the living area.
Living Area 23 ft 5 x 15 ft 5
A generous space with double glazed windows to the front elevation. Door with steps down to a gated areas where access can be gained to the front of the building. Wall mounted electric heater and a radiator. Door leading to the bedroom.
Bedroom 18 ft 5 x 10 ft 6
A double bedroom with a double glazed window and a radiator. Door leading to the dressing room.
Dressing Room
A range of fitted wardrobes, drawers and a dressing table. Radiator. Door leading to the bathroom / shower room.
Bathroom / Shower Room
A white four piece suite which includes: corner spa style bath, step in shower cubicle, pedestal wash basin basin and a low level WC. Part tiled walls and a ladder style towel radiator.
Agent Note
HMRC is a supervisory body for money laundering regulations, of which all estate agents need to be registered. As part of this, there are multiple requirements that agents must rigorously and consistently meet to ensure they stay compliant with the regulations and protect their clients. To do this, we use an identity verification service, approved by the Government as part of the Digital Identity and Attributes Trust Framework (DIATF).
This method and the process we follow to ensure compliance for your transaction come with significant time, financial and legal implications hence a portion of this is passed on. We elected for this verification process due to the speed, certainty, and accuracy it delivers. This helps us to protect all our client's interests by using the most advanced verification process to help prevent the impacts of money laundering alongside our internal manual policies and procedures while staying compliant with HMRC.
The administrative charge for this process is £40 plus VAT for a sole purchaser, £65 plus VAT for two purchasers and £75 plus VAT three or more purchasers.
Property Information
Local Authority North Yorkshire
Conservation Area No
Council Tax Band Band B
Council Tax Estimate £1,776
Flood Risk Rivers & Seas No Risk Surface Water Very Low
Coverage Mobile (based on calls indoors)
O2 Good
EE Medium
Three Good Vodafone Good
Broadband (estimated speeds) Standard 17 mbps Superfast 80 mbps Ultrafast - Satellite & Cable TV Availability BT Sky Virgin
Garage
A generous sized garage with power and lighting. Electric garage door. Door leading to a vestibule. Wall mounted gas boiler.
Vestibule
Oak flooring and a radiator. Doors leading to; the kitchen / living room, utility and occasional room,
Utility
Tumble dryer.
Occasional Room
15 ft 4 x 8 ft 8
Wardrobe and a built-in cupboard.
Open Plan Kitchen / Living Room
40 ft 0 x 15 ft 5
Kitchen Area
19 ft 7 - Max - 15 ft 9 - Min x 15 ft 9
A spacious kitchen offering a comprehensive range of wood effect wall and base units with contrasting work top surface rears with splash backs and incorporating an inset sink unit. Gas range cooker with an extractor over. Washing machine, dishwasher and a American style fridge / freezer. Oak flooring and a radiator. Door leading to the bathroom / shower room. Opening though to the living area.
Living Area
23 ft 5 x 15 ft 5
A generous space with double glazed windows to the front elevation. Door with steps down to a gated areas where access can be gained to the front of the building. Wall mounted electric heater and a radiator. Door leading to the bedroom.
Bedroom
18 ft 5 x 10 ft 6
A double bedroom with a double glazed window and a radiator. Door leading to the dressing room.
Dressing Room
A range of fitted wardrobes, drawers and a dressing table. Radiator. Door leading to the bathroom / shower room.
Bathroom / Shower Room
A white four piece suite which includes: corner spa style bath, step in shower cubicle, pedestal wash basin basin and a low level WC. Part tiled walls and a ladder style towel radiator.
Agent Note
HMRC is a supervisory body for money laundering regulations, of which all estate agents need to be registered. As part of this, there are multiple requirements that agents must rigorously and consistently meet to ensure they stay compliant with the regulations and protect their clients. To do this, we use an identity verification service, approved by the Government as part of the Digital Identity and Attributes Trust Framework (DIATF). This method and the process we follow to ensure compliance for your transaction come with significant time, financial and legal implications hence a portion of this is passed on. We elected for this verification process due to the speed, certainty, and accuracy it delivers. This helps us to protect all our client's interests by using the most advanced verification process to help prevent the impacts of money laundering alongside our internal manual policies and procedures while staying compliant with HMRC.The administrative charge for this process is £35 plus VAT for a sole purchaser, £60 plus VAT for two purchasers and £70 plus VAT three or more purchasers.
Property Information
Local Authority North YorkshireConservation AreaNoCouncil Tax Band Band BFlood RiskCouncil Tax Estimate £1,776Rivers & Seas No RiskSurface Water Very LowCoverageMobile (based on calls indoors)O2 GoodEE MediumThree GoodVodafone GoodBroadband (estimated speeds)Standard 17 mbpsSuperfast 80 mbpsUltrafast -Satellite & Cable TV AvailabilityBT Sky Virgin
IMPORTANT NOTE TO POTENTIAL PURCHASERS:
We endeavour to make our particulars accurate and reliable, however, they do not constitute or form part of an offer or any contract and none is to be relied upon as statements of representation or fact. The services, systems and appliances listed in this specification have not been tested by us and no guarantee as to their operating ability or efficiency is given. All photographs and measurements have been taken as a guide only and are not precise. Floor plans where included are not to scale and accuracy is not guaranteed. If you require clarification or further information on any points, please contact us, especially if you are travelling some distance to view. Fixtures and fittings other than those mentioned are to be agreed with the seller.
Albemarle Back Road, Scarborough, North Yorkshire, YO11
Additional Information
-
Property refSCA240346
-
TenureLeasehold
-
Council TaxB
-
Ground RentContact the branch
-
Ground Rent ReviewContact the branch
-
Service ChargeContact the branch
Similar properties for sale by Reeds Rains Scarborough
The pin shows the exact address of the property
Energy Efficiency Rating
Very energy efficient - lower running costs
Not energy efficient - higher running costs
Current
N/APotential
N/ACO2 Rating
Very energy efficient - lower running costs
Not energy efficient - higher running costs
