This calculator provides a guide to the amount of residential stamp duty you may pay and does not guarantee this will be the actual cost. This calculation is based on the Stamp Duty Land Tax Rates for residential properties purchased from 23rd September 2022 and second homes from 31st October 2024. For more information on Stamp Duty Land Tax, click here.
1 bedroom Flat for sale, Alverstone Road, Southsea, Hampshire, PO4
Features and Description
Summerson Lodge is super popular with its welcoming residents lounge, on site manager and modern contemporary feel! Now I know you may have heard this before but our apartment is frankly just that little bit better than most! Why? Well firstly set on the ground floor it offers direct access to a quiet well tended garden with a small patio to enjoy the sun. But it gets better the home is just that bit larger than the average with a decent sitting/dining room and large bedroom and if you yearn for more it can also be found discreetly tucked away with hardly any adjoining properties! In summary you have a large entrance hall with useful storage, a great fitted kitchen, modern bathroom, great size double bedroom and of course the large sitting/dining room with access to the garden. The block is great too with residents parking and a welcoming feel. Offered for sale with no forward chain these ground floor garden facing apartments always attract early interest!
Full Description
Summerson Lodge is super popular with its welcoming residents lounge, on site manager and modern contemporary feel! Now I know you may have heard this before but our apartment is frankly just that little bit better than most! Why? Well firstly set on the ground floor it offers direct access to a quiet well tended garden with a small patio to enjoy the sun. But it gets better the home is just that bit larger than the average with a decent sitting/dining room and large bedroom and if you yearn for more it can also be found discreetly tucked away with hardly any adjoining properties! In summary you have a large entrance hall with useful storage, a great fitted kitchen, modern bathroom, great size double bedroom and of course the large sitting/dining room with access to the garden. The block is great too with residents parking and a welcoming feel. Offered for sale with no forward chain these ground floor garden facing apartments always attract early interest!
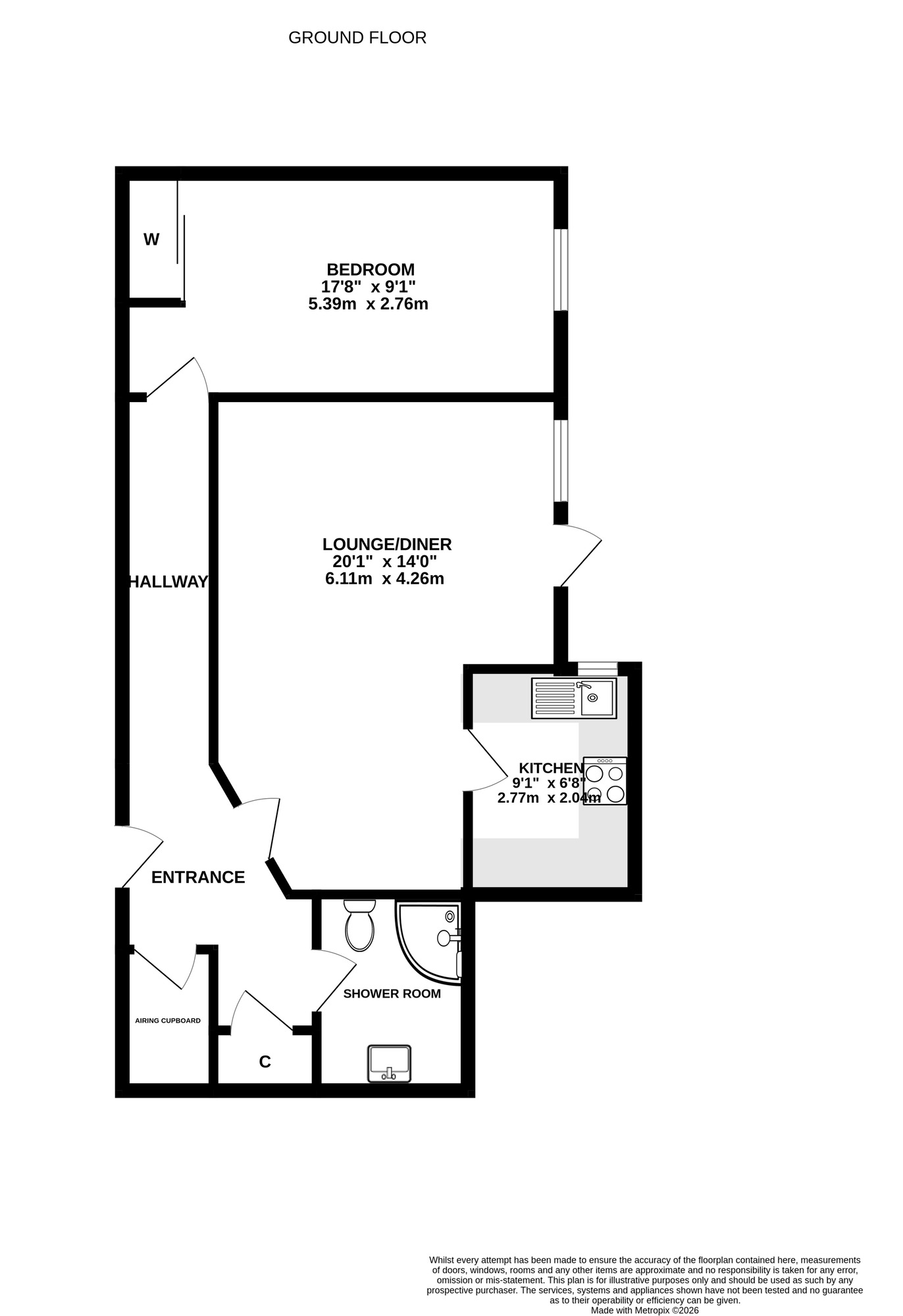
Communal Hall / Access
With security intercom.
Entrance Hall
With useful storage cupboards.
Sitting / Dining Room
Much larger than average and capable of taking a dining room table and chairs plus sofas. Plenty of natural light with its window and doors out to the garden.
Patio
Small patio area but enough to enjoy the sun!
Kitchen
Fitted with a huge range of base and eye level units under squared edge worksurfaces, single sink, eye level built in oven and hob with extractor. Window to the garden.
Bathroom
Again all modern fittings with a large walk in shower, wash hand basin and low level W/C.
Bedroom
Again much larger than average and if you do not believe us come and have a look! Built in wardrobes and window to the garden.
Residents Lounge
Free to use as little or as much as you would like!
Directions
For your satnav use PO4 8GS.
Lease Details
Term : 125 years from and including 1 May2012
IMPORTANT NOTE TO POTENTIAL PURCHASERS:
We endeavour to make our particulars accurate and reliable, however, they do not constitute or form part of an offer or any contract and none is to be relied upon as statements of representation or fact. The services, systems and appliances listed in this specification have not been tested by us and no guarantee as to their operating ability or efficiency is given. All photographs and measurements have been taken as a guide only and are not precise. Floor plans where included are not to scale and accuracy is not guaranteed. If you require clarification or further information on any points, please contact us, especially if you are travelling some distance to view. Fixtures and fittings other than those mentioned are to be agreed with the seller.
Alverstone Road, Southsea, Hampshire, PO4
Additional Information
-
Property refSOU260031
-
TenureLeasehold
-
Lease length111 years
-
Council TaxB
-
Ground RentContact the branch
-
Ground Rent ReviewContact the branch
-
Service ChargeContact the branch
Similar properties for sale by Reeds Rains Southsea
The pin shows the exact address of the property
Energy Efficiency Rating
Very energy efficient - lower running costs
Not energy efficient - higher running costs
Current
N/APotential
N/ACO2 Rating
Very energy efficient - lower running costs
Not energy efficient - higher running costs
