This calculator provides a guide to the amount of residential stamp duty you may pay and does not guarantee this will be the actual cost. This calculation is based on the Stamp Duty Land Tax Rates for residential properties purchased from 23rd September 2022 and second homes from 31st October 2024. For more information on Stamp Duty Land Tax, click here.
3 bedroom Flat for sale, Middlewood Street, Salford, M5
Features and Description
- Rarely available 3 double bedroom apartment
- Within the prestigious Middlewood Locks development
- Allocated parking space included with ANPR barrier
- Spacious dual-aspect living area/kitchen
- Immaculately presented and with a range of upgrades
- South-facing balcony with great views of the city skyline
- Close to the city centre with great amenities nearby
- EWS1 form available (B1 rating)
- Leasehold
- EPC Rating B
A stunning and rarely available 3 double bedroom apartment with balcony and parking space in the desirable canal-side development of Middlewood Locks. Offering high-specification contemporary living with a range of impressive upgrades, it features a spacious dual-aspect Living Area/Kitchen, along with ensuite and main bathroom. Fantastic panoramic views of the city skyline. Superb location offering a range of amenities and Spinningfields around 10 minutes walk, with motorway links easily accessible. EWS1 (B1 rating) available. EPC Rating B.
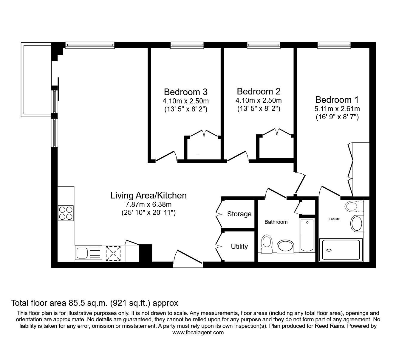
6TH FLOOR
Secure communal entrance. The apartment can be reached via lift or stairs.
Living Area / Kitchen
7.87m x 6.38m (both max)
Offering a very spacious and flexible open-plan layout, with ample scope for living and dining areas. The apartment's corner position allows for full-height windows to dual aspects, providing excellent natural light and great views across the city centre skyline. Upgraded herringbone-style flooring creates a stylish contemporary ambience, together with a feature media wall with backlit panel and cupboards mounted below. The kitchen area offers a range of base and wall units with contrasting worktops, inset sink with mixer tap and worktop lighting. Integral appliances include and electric oven, electric hob with extractor hood, microwave, fridge/freezer and dishwasher. Cupboard with plumbing for washing machine and further store cupboard, with mirrored doors to enhance the spacious feel.
Balcony
A superb outdoor relaxation space which offers excellent views over the city skyline.
Bedroom 1
5.11m x 2.6m (both max)
Full-height window, feature wall panelling, carpeted floor, fitted wardrobes. Door to:
En-Suite
With a large walk-in shower, wash basin with mixer tap, WC, mirrored wall cupboards, tiled splashbacks and flooring, heated towel rail.
Bedroom 2
13'5" x 8'2" (4.10m x 2.50m)
Full-height window, carpeted floor, fitted wardrobe.
Bedroom 3
13'5" x 8'2" (4.10m x 2.50m)
Full-height window, carpeted floor, fitted wardrobe.
Bathroom
Panelled bath with twin-head shower above, wash basin with mixer tap, WC, mirrored wall cupboards, tiled splashbacks and flooring, heated towel rail.
Parking
Allocated parking space with ANPR secure entry.
Leasehold / Council Tax
Lease term: 999 years from 1st July 2018.Ground rent: £325 per annum.Service charge: £896.82 for period 01/07/25-30/09/25, equating to an approximate annual figure of £3587.28.Please verify lease details with your solicitor.Council tax band D (Salford City Council).
Agent's Note
To be able to purchase a property in the United Kingdom all agents have a legal requirement to conduct Identity checks on all customers involved in the transaction to fulfil their obligations under Anti Money Laundering regulations. We outsource this check to a third party and a charge will apply. Ask the branch for further details.
IMPORTANT NOTE TO POTENTIAL PURCHASERS:
We endeavour to make our particulars accurate and reliable, however, they do not constitute or form part of an offer or any contract and none is to be relied upon as statements of representation or fact. The services, systems and appliances listed in this specification have not been tested by us and no guarantee as to their operating ability or efficiency is given. All photographs and measurements have been taken as a guide only and are not precise. Floor plans where included are not to scale and accuracy is not guaranteed. If you require clarification or further information on any points, please contact us, especially if you are travelling some distance to view. Fixtures and fittings other than those mentioned are to be agreed with the seller.
Middlewood Street, Salford, M5
Additional Information
-
Property refSQU250091
-
EPCB
-
TenureLeasehold
-
Lease length991 years
-
Council TaxD
-
Local authoritySalford City Council
-
Ground Rent£325
-
Ground Rent ReviewContact the branch
-
Service Charge£3,587
Similar properties for sale by Reeds Rains Salford Quays
The pin shows the exact address of the property
Energy Efficiency Rating
Very energy efficient - lower running costs
Not energy efficient - higher running costs
Current
85Potential
85CO2 Rating
Very energy efficient - lower running costs
Not energy efficient - higher running costs
