This calculator provides a guide to the amount of residential stamp duty you may pay and does not guarantee this will be the actual cost. This calculation is based on the Stamp Duty Land Tax Rates for residential properties purchased from 23rd September 2022 and second homes from 31st October 2024. For more information on Stamp Duty Land Tax, click here.
2 bedroom Flat for sale, Shadwell Road, Portsmouth, Hampshire, PO2
Features and Description
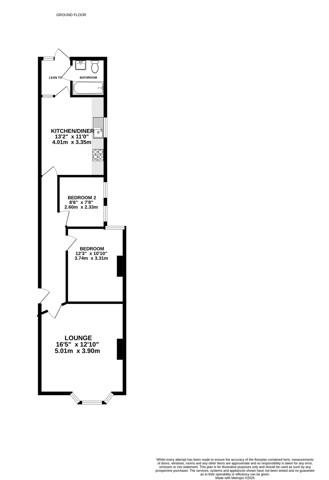
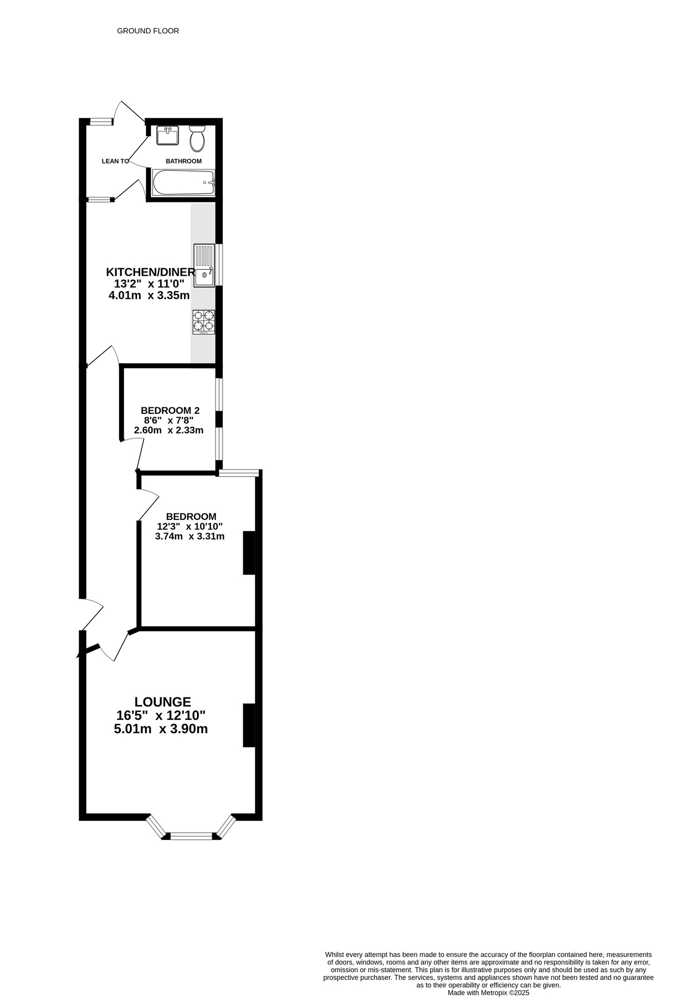
This superb two bedroom GARDEN apartment is without doubt sure to impress the most discerning of buyers! Curious? Well you should be! This home not only offers you own private and generous garden but also surprisingly spacious accommodation with its impressive bay window to the front and frankly huge kitchen dining room. In summary the accommodation offers the bright sitting room, two bedrooms, the fabulous kitchen dining room and bathroom. However this is the property that keep on giving so there is more... Yes in addition to having a 999 year lease the home is also sold with a half share of the freehold giving valuable direction and control over the costs and maintenance of the building. In fact whilst on this point the home is currently undergoing maintenance to the front and bay and together with a brand new communal door will make this home really stand out! Lastly...there is no chain, I mean what more could you possibly want!?
Full Description
This superb two bedroom GARDEN apartment is without doubt sure to impress the most discerning of buyers! Curious? Well you should be! This home not only offers you own private and generous garden but also surprisingly spacious accommodation with its impressive bay window to the front and frankly huge kitchen dining room. In summary the accommodation offers the bright sitting room, two bedrooms, the fabulous kitchen dining room and bathroom. However this is the property that keep on giving so there is more... Yes in addition to having a 999 year lease the home is also sold with a half share of the freehold giving valuable direction and control over the costs and maintenance of the building. In fact whilst on this point the home is currently undergoing maintenance to the front and bay and together with a brand new communal door will make this home really stand out! Lastly...there is no chain, I mean what more could you possibly want!?
Sitting Room
A wonderful bright room with its tall bay window ensuring much in the way of natural light. Fire surround, picture rails, coving and ceiling rose.
Beedroom 1
Window to rear and
Bedroom 2
Window to rear. Again ceiling rose, coving and picture rails.
Kitchen Dining Room
What a great size! In fact its highly unusual to get such a large kitchen dining room in an apartment! However back to the property, a good range of base and eye level units under worksurfaces. Space and plumbing for appliances plus cooker point. Window to side and more than enough space for a large dining room table and chairs.
Bathroom
A white suite of panel enclosed bath, low level W/C and wash hand basin. Window to rear.
Rear Garden
An enclosed garden of a decent size plus quite a large area to the side which could accommodate a shed or additional storage.
Directions
For your satnav use PO2 9EJ.
Lease Details
The property is sold under a lease with the details below. However in addition the home is also being sold with a SHARE OF THE FREEHOLD. For more details please contact the office.Term : 999 years from 1 January 2004
IMPORTANT NOTE TO POTENTIAL PURCHASERS:
We endeavour to make our particulars accurate and reliable, however, they do not constitute or form part of an offer or any contract and none is to be relied upon as statements of representation or fact. The services, systems and appliances listed in this specification have not been tested by us and no guarantee as to their operating ability or efficiency is given. All photographs and measurements have been taken as a guide only and are not precise. Floor plans where included are not to scale and accuracy is not guaranteed. If you require clarification or further information on any points, please contact us, especially if you are travelling some distance to view. Fixtures and fittings other than those mentioned are to be agreed with the seller.
Shadwell Road, Portsmouth, Hampshire, PO2
Additional Information
-
Property refSOU250130
-
EPCD
-
TenureShare of Freehold
-
Council TaxA
Similar properties for sale by Reeds Rains Southsea
The pin shows the exact address of the property
Energy Efficiency Rating
Very energy efficient - lower running costs
Not energy efficient - higher running costs
Current
63Potential
69CO2 Rating
Very energy efficient - lower running costs
Not energy efficient - higher running costs
