This calculator provides a guide to the amount of residential stamp duty you may pay and does not guarantee this will be the actual cost. This calculation is based on the Stamp Duty Land Tax Rates for residential properties purchased from 23rd September 2022 and second homes from 31st October 2024. For more information on Stamp Duty Land Tax, click here.
2 bedroom Mid Terrace House for sale, Brixton Close, Hull, East Yorkshire, HU8
Features and Description
- Tucked Away Location – peaceful corner position overlooking open green space
 - Smartly Presented – smart and stylish two-bedroom terrace home
 - Ideal for First-Time Buyers – ready to move straight into
 - Fantastic Setting – close to shops, transport links, and local amenities
 - Highly Regarded Schools – including Neasden Primary and Malet Lambert Senior
 - No Chain Involved – a smooth and stress-free purchase opportunity
 - Gas Central Heating & Double Glazing – energy efficient with EPC Grade ‘C’
 - Bright Sitting Room – comfortable space with fresh, neutral décor
 - Modern Breakfast Kitchen – fitted cabinetry and room for dining
 - Two Double Bedrooms – both with built-in storage cupboards
 - Shower Room – with separate WC for convenience
 - Low-Maintenance Garden – paved seating areas, artificial lawn, and useful utility room
 
Tucked away in a quiet corner overlooking open green space, this smartly presented two-double bedroom terrace home is an absolute gem – the perfect find for first-time buyers or anyone seeking a smart, low-maintenance home in a popular HU8 location.
Perfectly placed for everyday convenience, the property is within easy reach of local shops, regular transport links, and highly regarded schools including Neasden primary and Malet lambert senior school. this address offers that ideal blend of lifestyle and location – a friendly, established setting with everything you need close at hand. with gas central heating and double glazing throughout, the home also boasts an impressive energy performance rating of 'C' and is offered to the market with no chain involved, making for a smooth, straightforward move.
Inside, the accommodation is bright, welcoming, and ready to move straight into. the entrance hall sets the tone with its fresh, neutral décor, leading through to a comfortable sitting room – a lovely space to relax or entertain. the breakfast kitchen sits to the rear, fitted with modern cabinetry and room for dining. it’s a practical, well-planned area that makes everyday living easy.
upstairs, the central landing provides access to two well-proportioned double bedrooms, each benefiting from built-in storage. the modern shower room is complemented by a separate WC – a thoughtful layout for busy mornings.
Outside, the front of the home features a neat forecourt garden, while the rear garden has been designed with easy upkeep in mind. it’s an attractive, enclosed space with paved seating areas and artificial lawn – perfect for relaxing or socialising without the fuss of maintenance. the property also enjoys the added benefit of a useful brick-built utility room providing handy extra storage.
A smart, stylish home in a peaceful setting, offering convenience, comfort, and great value. early viewing is strongly recommended to fully appreciate all that this lovely property has to offer.
Council tax band ‘A, payable to Hull City Council.
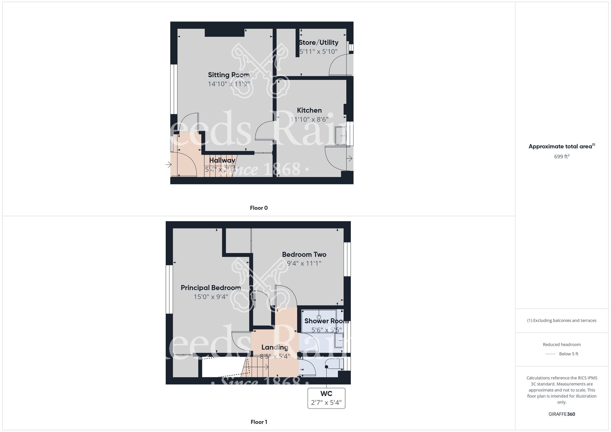
Entrance Hall
Step through the timber part-glazed entrance door, framed by matching side panels that flood the space with natural light. though compact, this bright hallway feels instantly inviting and sets the tone for the home beyond. The staircase rises neatly to the first floor, while a part-glazed internal door leads through to the sitting room, creating a welcoming flow from the moment you arrive.
Sitting Room
14'10" x 11'9" (4.52m x 3.58m)
A light-filled space, the sitting room enjoys a front-facing window that frames the outlook and allows sunshine to pour in throughout the day. Ceiling coving. Useful built-in under-stairs cupboard provides practical storage for everyday essentials, and a part-glazed door leads effortlessly through to the kitchen at the rear.
Breakfast Kitchen
11'10" x 8'6" (3.60m x 2.60m)
At the rear of the home, the kitchen offers views over the garden and plenty of natural light. Fitted with a range of base and wall cabinets, laminate worktops, and tiled splashbacks, it’s a practical, well-planned space featuring a stainless steel sink and durable vinyl flooring. the adjoining store offers exciting potential — this area could easily be reimagined as a larger, open-plan kitchen-diner, a layout popular in similar properties nearby.
Landing
8'5" x 5'4" (2.57m x 1.63m)
A straightforward space that connects all the first-floor rooms. Neutral in tone and simple in layout, it’s a blank canvas that makes the upstairs feel open and easy to navigate.
Principal Bedroom
14'12" x 9'4" (4.57m x 2.84m)
A generous double bedroom positioned to the front of the home, with a wide window drawing in plenty of natural light. the built-in storage cupboard keeps things practical. Ceiling coving and a radiator complete the space.
Bedroom 2
11'1" x 9'4" (3.38m x 2.84m)
Overlooking the rear garden, this second double bedroom offers both space and versatility. Featuring two built-in wardrobes, it provides excellent storage and could serve equally well as a guest room, child’s room, or a peaceful home office. Laminate flooring enhance its modern, low-maintenance appeal.
Shower Room
5'6" x 5'5" (1.68m x 1.65m)
Designed for everyday ease, the shower room features a modern two-piece suite in white, comprising a generous walk-in shower enclosure and wash basin. extensively tiled and naturally lit by a rear window, it’s a clean, functional space with scope to add your own style.
Seperate WC
5'4" x 2'7" (1.63m x 0.79m)
Positioned next to the shower room, fitted with a low-flush suite and wall tiling.
Front Forecourt
Nestled in the corner of a pedestrianised cul-de-sac overlooking open green space. The small forecourt-style front garden adds to the kerb appeal, while a shared pathway continues along the side and rear of the home, creating an attractive approach.
Rear Garden
The rear garden is enclosed, and designed for easy maintenance. featuring a spacious paved terrace for outdoor dining or relaxing, and an area of astro turf that keeps the space neat year-round.
Store / Utility
8'6" x 5'11" (2.60m x 1.80m)
A versatile outbuilding that has served as a utility and general store, offering excellent flexibility for future use. it could be incorporated into the main kitchen to create a larger open-plan living space, converted into a dedicated laundry or hobby room, or simply retained as useful storage.
Agent's Note
To fulfil the obligation to share material information, please follow the web link where you'll find a comprehensive document containing key facts for buyers, providing valuable insights related to the property that you'll undoubtedly find useful.
Agent's Note 2
HMRC is a supervisory body for money laundering regulations, of which all estate agents need to be registered. As part of this, there are multiple requirements that agents must rigorously and consistently meet to ensure they stay compliant with the regulations and protect their clients. To do this, we use an identity verification service, approved by the Government as part of the Digital Identity and Attributes Trust Framework (DIATF). This method and the process we follow to ensure compliance for your transaction come with significant time, financial and legal implications hence a portion of this is passed on. We elected for this verification process due to the speed, certainty, and accuracy it delivers. This helps us to protect all our client's interests by using the most advanced verification process to help prevent the impacts of money laundering alongside our internal manual policies and procedures while staying compliant with HMRC.
Agent's Note Two Continued
The administrative charge for this process is £40 plus VAT for a sole purchaser, £65 plus VAT for two purchasers and £75 plus VAT three or more purchasers.
IMPORTANT NOTE TO POTENTIAL PURCHASERS:
We endeavour to make our particulars accurate and reliable, however, they do not constitute or form part of an offer or any contract and none is to be relied upon as statements of representation or fact. The services, systems and appliances listed in this specification have not been tested by us and no guarantee as to their operating ability or efficiency is given. All photographs and measurements have been taken as a guide only and are not precise. Floor plans where included are not to scale and accuracy is not guaranteed. If you require clarification or further information on any points, please contact us, especially if you are travelling some distance to view. Fixtures and fittings other than those mentioned are to be agreed with the seller.
Brixton Close, Hull, East Yorkshire, HU8
        Step through the timber part-glazed entrance door, framed by matching side panels that flood the space with natural light. though compact, this bright hallway feels instantly inviting and sets the tone for the home beyond. The staircase rises neatly to the first floor, while a part-glazed internal door leads through to the sitting room, creating a welcoming flow from the moment you arrive.
        A light-filled space, the sitting room enjoys a front-facing window that frames the outlook and allows sunshine to pour in throughout the day. Ceiling coving. Useful built-in under-stairs cupboard provides practical storage for everyday essentials, and a part-glazed door leads effortlessly through to the kitchen at the rear.
        
        
        At the rear of the home, the kitchen offers views over the garden and plenty of natural light. Fitted with a range of base and wall cabinets, laminate worktops, and tiled splashbacks, it’s a practical, well-planned space featuring a stainless steel sink and durable vinyl flooring. the adjoining store offers exciting potential — this area could easily be reimagined as a larger, open-plan kitchen-diner, a layout popular in similar properties nearby.
        
        
        A generous double bedroom positioned to the front of the home, with a wide window drawing in plenty of natural light. the built-in storage cupboard keeps things practical. Ceiling coving and a radiator complete the space.
        
        
        Overlooking the rear garden, this second double bedroom offers both space and versatility. Featuring two built-in wardrobes, it provides excellent storage and could serve equally well as a guest room, child’s room, or a peaceful home office. Laminate flooring enhance its modern, low-maintenance appeal.
        
        
        Designed for everyday ease, the shower room features a modern two-piece suite in white, comprising a generous walk-in shower enclosure and wash basin. extensively tiled and naturally lit by a rear window, it’s a clean, functional space with scope to add your own style.
        The rear garden is enclosed, and designed for easy maintenance. featuring a spacious paved terrace for outdoor dining or relaxing, and an area of astro turf that keeps the space neat year-round.
        
        
        
        The pin shows the exact address of the property
Energy Efficiency Rating
Very energy efficient - lower running costs
Not energy efficient - higher running costs
Current
70Potential
85CO2 Rating
Very energy efficient - lower running costs
Not energy efficient - higher running costs
