This calculator provides a guide to the amount of residential stamp duty you may pay and does not guarantee this will be the actual cost. This calculation is based on the Stamp Duty Land Tax Rates for residential properties purchased from 23rd September 2022 and second homes from 31st October 2024. For more information on Stamp Duty Land Tax, click here.
3 bedroom Mid Terrace House for sale, Lowther Drive, Selby, North Yorkshire, YO8
Features and Description
- Off Street Parking
- No Chain
- Close proximity to Three Lakes Retail Park
- Good Sized Rear Garden
- Three Bedroom Mid Terrace
- Ideal First Home
- Ideal for Investors
- Add your own stamp
*CHAIN FREE* DONT DELAY BOOK A VIEWING TODAY * 3 BEDROOM *SPACIOUS * READY TO PUT YOUR OWN STAMP ON * DETACHED GARAGE * INVESTOR * FIRST TIME BUYER *
Location
Lowther Drive is conveniently located close to the Selby Bypass. Selby Town Centre has a wide range of shopping facilities, fantastic choice of Leisure activities and supermarkets including Lidl, Sainsbury's, Tesco, Morrisons and Aldi. The historic town of Selby boasts the historic Selby Abbey, multiple schools, and various retail parks. For the commuter, Selby is well placed for access to the A19 and A63 which in turn provides links to York, Leeds, Doncaster. where as the rail way station being 10-15 minutes walking distance away provides links to Hull, Leeds Doncaster and even London.
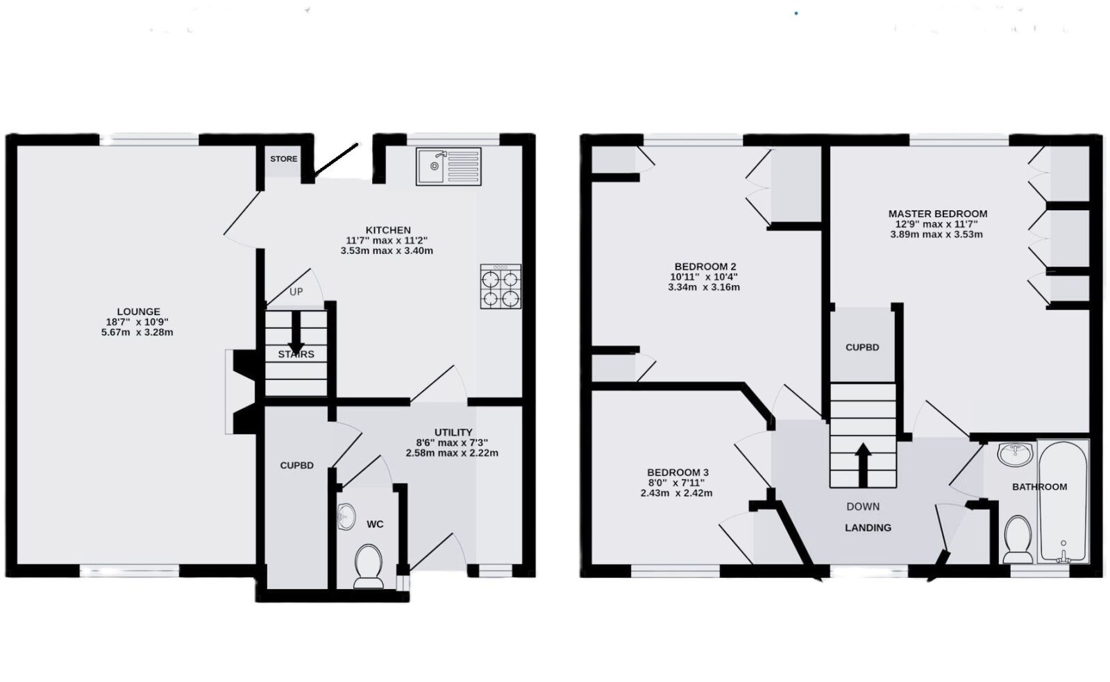
Front Entrance / Utility
8'6" x 7'3" (2.58m x 2.22m)
Kitchen
3.53mx 3.40m
Lounge
18'7" x 10'9" (5.67m x 3.28m)
Master Bedroom
12'9" x 11'7" (3.89m x 3.53m)
Bedroom 2
10'11" x 10'4" (3.34m x 3.16m)
Bedroom 3
8'0" x 7'11" (2.44m x 2.41m)
Directions
Leave the Selby office and turn right onto Gowthorpe and head towards the Abbey. At the traffic lights bear right onto the A1041 Bawtry Road and continue ahead, take a left hand turning at the roundabout onto Abbots Road and take the first left hand turning onto Eden Avenue, take a right hand turning into Petre Avenue and then right again onto Lowther Drive where the property can be found easily identified by our Reeds Rains 'For Sale' board.
IMPORTANT NOTE TO POTENTIAL PURCHASERS:
We endeavour to make our particulars accurate and reliable, however, they do not constitute or form part of an offer or any contract and none is to be relied upon as statements of representation or fact. The services, systems and appliances listed in this specification have not been tested by us and no guarantee as to their operating ability or efficiency is given. All photographs and measurements have been taken as a guide only and are not precise. Floor plans where included are not to scale and accuracy is not guaranteed. If you require clarification or further information on any points, please contact us, especially if you are travelling some distance to view. Fixtures and fittings other than those mentioned are to be agreed with the seller.
Lowther Drive, Selby, North Yorkshire, YO8
The pin shows the exact address of the property
Energy Efficiency Rating
Very energy efficient - lower running costs
Not energy efficient - higher running costs
Current
N/APotential
N/ACO2 Rating
Very energy efficient - lower running costs
Not energy efficient - higher running costs
