This calculator provides a guide to the amount of residential stamp duty you may pay and does not guarantee this will be the actual cost. This calculation is based on the Stamp Duty Land Tax Rates for residential properties purchased from 23rd September 2022 and second homes from 31st October 2024. For more information on Stamp Duty Land Tax, click here.
1 bedroom Property for sale, Henderson Park, Southsea, Hampshire, PO4
Features and Description
Situated in a 12 months of the year residential Park Home in Eastney, close to Henderson park and Eastney Beach! The accommodation would be well suited for a couple or single looking for a change of living. Well appointed with double glazing, gas fired central heating, full size bathroom, double bedroom, large living area, modern kitchen and parking for two cars this opportunity is well worth consideration.
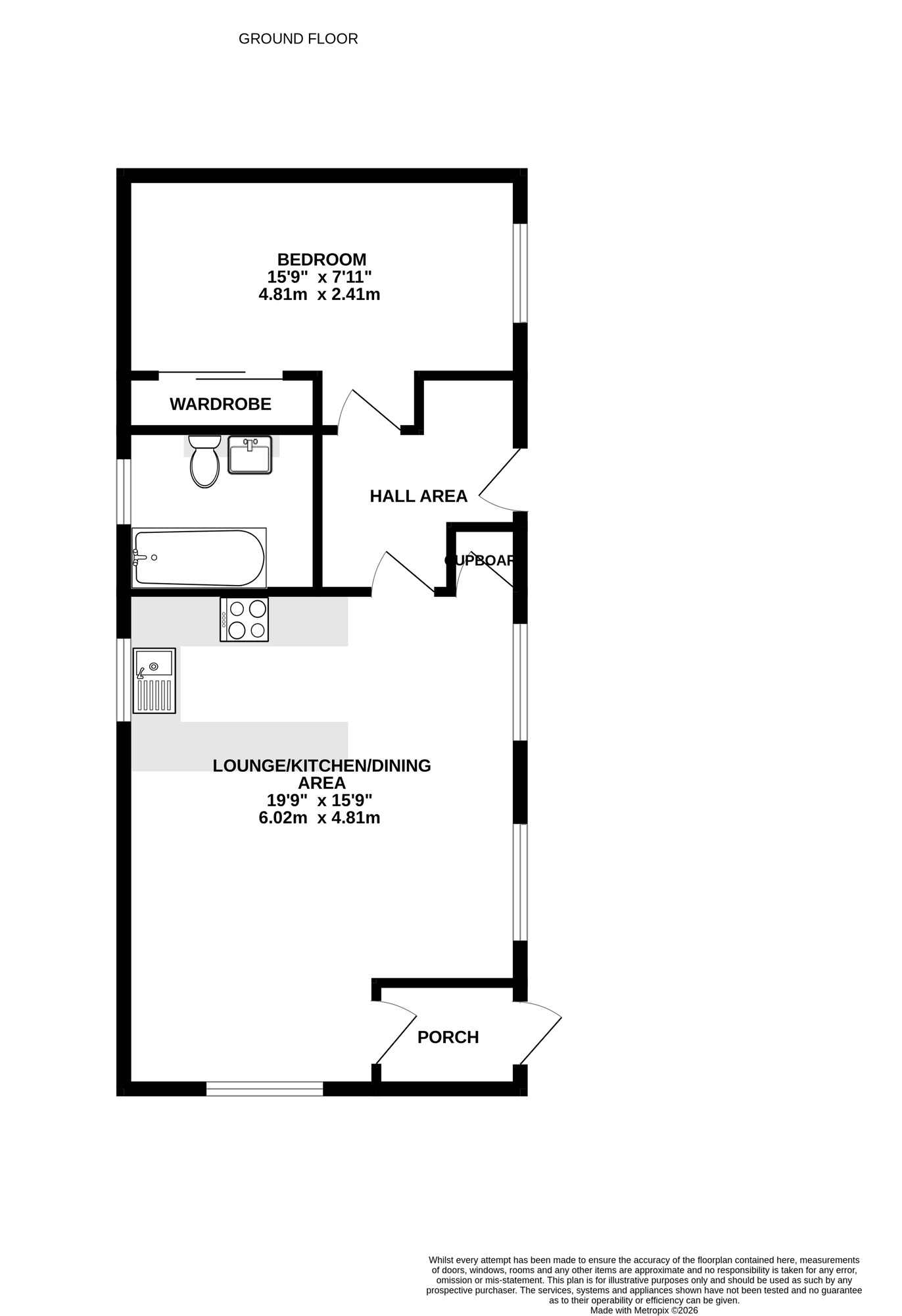
Lobby
Entrance to lobby with storage for hats coats and shoes.
Entrance Hall
Doors to all rooms.
lounge Area
4.18 x 6.02
Large lounge area, with plenty of light from dual aspect windows!
Kitchen Area
Modern kitchen with plenty of wall and base units with stainless sink drainer and window.
Dining Area
Dining area of Kitchen area.
Bathroom
2.34 x 1.95
Three piece bathroom suite consisting of low level WC, pedestal hand wash basin and panelled bath,
Bedroom
4.81 x 2.41
Double bedroom with built in wardrobes and double glazed window.
Garden
Very own outside space/garden.
Parking
Parking for two cars.
IMPORTANT NOTE TO POTENTIAL PURCHASERS:
We endeavour to make our particulars accurate and reliable, however, they do not constitute or form part of an offer or any contract and none is to be relied upon as statements of representation or fact. The services, systems and appliances listed in this specification have not been tested by us and no guarantee as to their operating ability or efficiency is given. All photographs and measurements have been taken as a guide only and are not precise. Floor plans where included are not to scale and accuracy is not guaranteed. If you require clarification or further information on any points, please contact us, especially if you are travelling some distance to view. Fixtures and fittings other than those mentioned are to be agreed with the seller.
Henderson Park, Southsea, Hampshire, PO4
Additional Information
-
Property refSOU260039
-
Council TaxA
Similar properties for sale by Reeds Rains Southsea
The pin shows the exact address of the property
Energy Efficiency Rating
Very energy efficient - lower running costs
Not energy efficient - higher running costs
Current
N/APotential
N/ACO2 Rating
Very energy efficient - lower running costs
Not energy efficient - higher running costs
