This calculator provides a guide to the amount of residential stamp duty you may pay and does not guarantee this will be the actual cost. This calculation is based on the Stamp Duty Land Tax Rates for residential properties purchased from 23rd September 2022 and second homes from 31st October 2024. For more information on Stamp Duty Land Tax, click here.
3 bedroom Semi Detached House for sale, Sheridan Drive, Stanley, Durham, DH9
Features and Description
- Semi-Detached House
- Three Bedrooms
- Three Tier Garden
- EPC Rating - TBC
- Council Tax Band - C
Welcome to this beautifully presented three-bedroom semi-detached home, perfectly situated in a desirable location just a short walk from local transport links and within a mile of the town centre. This lovely property offers stylish and versatile living spaces, ideal for first-time buyers, couples, or families.
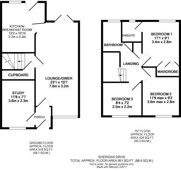
The ground floor features a spacious lounge and dining room, perfect for relaxing or entertaining guests. Patio doors open out to a stunning three-tiered garden—an ideal space for summer barbecues, family gatherings, or simply enjoying the outdoors. The well-designed kitchen is both spacious and practical, offering plenty of storage and worktop space.
The former garage has been thoughtfully converted into an additional room, offering endless possibilities—it could be used as a second lounge, cinema room, home office, or playroom to suit your lifestyle.
Upstairs, the master bedroom boasts a beautifully decorated ensuite bathroom, accompanied by a generous double bedroom, a comfortable single bedroom, and a stylish family bathroom. The stairway, enhanced with elegant wall panelling, adds a touch of charm and character to the home.
With its flexible layout, modern décor, and convenient location, this property truly combines comfort, style, and practicality—ready for you to move in and make it your own.
Lounge / Dining Room
7.04 x 3.21
Lounge 2
3.54 x 2.34
Bathroom
1.41 x 2.47
Bedroom 1
2.79 x 2.87
En-Suite Bathroom
1.52 x 1.59
Bedroom 2
2.79 x 2.87
Bedroom 3
2.51 x 3.01
IMPORTANT NOTE TO POTENTIAL PURCHASERS:
We endeavour to make our particulars accurate and reliable, however, they do not constitute or form part of an offer or any contract and none is to be relied upon as statements of representation or fact. The services, systems and appliances listed in this specification have not been tested by us and no guarantee as to their operating ability or efficiency is given. All photographs and measurements have been taken as a guide only and are not precise. Floor plans where included are not to scale and accuracy is not guaranteed. If you require clarification or further information on any points, please contact us, especially if you are travelling some distance to view. Fixtures and fittings other than those mentioned are to be agreed with the seller.
Sheridan Drive, Stanley, Durham, DH9
Additional Information
-
Property refSTA250345
-
Council TaxC
-
Local authorityDurham City Council
Similar properties for sale by Reeds Rains Stanley
The pin shows the exact address of the property
Energy Efficiency Rating
Very energy efficient - lower running costs
Not energy efficient - higher running costs
Current
N/APotential
N/ACO2 Rating
Very energy efficient - lower running costs
Not energy efficient - higher running costs
