This calculator provides a guide to the amount of residential stamp duty you may pay and does not guarantee this will be the actual cost. This calculation is based on the Stamp Duty Land Tax Rates for residential properties purchased from 23rd September 2022 and second homes from 31st October 2024. For more information on Stamp Duty Land Tax, click here.
3 bedroom Detached House for sale, Nevilles Cross Bank, Nevilles Cross, Durham, DH1
Features and Description
- Chain Free
- Unique Property
- 3 Double Bedrooms
- Detached Garage
- Impressive Location
- Private Garden
We are delighted to present this remarkable three bedroom bungalow in Nevilles Cross. The property has an unconventional layout, having undergone significant extensions, and includes a first floor with four rooms. The property is in need of some modernisation throughout, and is being sold with no onward chain, so presents the buyer with the unique opportunity to put their own stamp on this one-of-a-kind property.
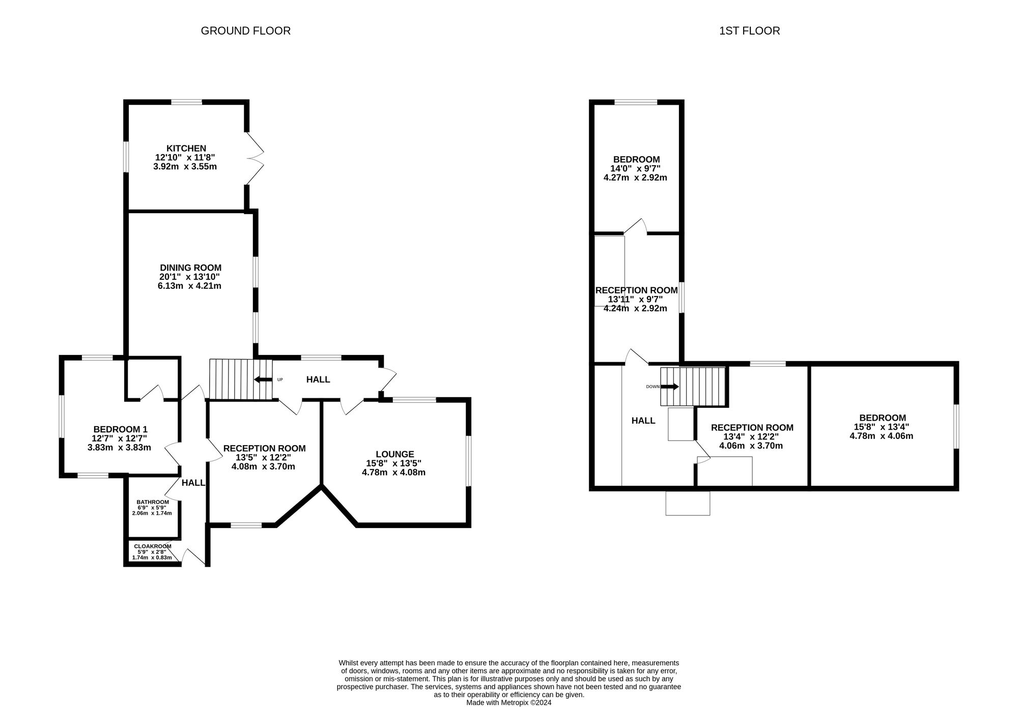
The property briefly comprises of a kitchen, dining room, bedroom, bathroom, and two receptions to the ground floor, as well as four rooms to the first floor, two of which are bedrooms. Outside, there is a generous plot with an enviable garden, as well as space for off-street parking and a detached garage. The exceptional location means that the property is ideally situated for access into the city, and is in close proximity for schools in the area. High levels of interest are anticipated, so don't hesitate to call on 0191 384 1222 to arrange a viewing.
Council Tax Band F
EPC Awaited
Entrance Hall
Door at the front leads into carpeted hall with a storage cupboard giving access to WC, bathroom, bedroom, and two receptions.
WC
Toilet with a frosted window to the side.
Bathroom
Containing a bath with overhead shower, a sink and a frosted window to the side
Bedroom 1
3.8mx3.8m
Carpeted double bedroom with a radiator and fitted wardrobes. Naturally lit by windows to the front, side and rear.
Reception Room
4.1mx3.7m
Carpeted reception room with a window to the front. Heated by a central heating radiator. Allows access into lounge, and hallways
Lounge
4.7m4.1m
Carpeted lounge with windows to the side and rear. Heated by a gas fire and central heating radiator.
Hall
Additional hall with doors to the reception and lounge, giving access to the garden via door to the side of the property, with stairway to first floor.
Dining Room
6.1mx4.2m
Carpeted dining room with two windows to the side, overlooking the garden. Storage cupboard housing the boiler.
Kitchen / Diner
3.5mx3.9m
Laminate units and worktops house free standing units, such as a plumbed in washer. Windows to the side and rear provide natural light and patio doors to the side allow access into the garden.
First Floor Landing
On the first floor, providing access into bedrooms. Containing built in storage.
Reception Room
4.2mx2.9m
Carpeted reception room with built in storage, a radiator, and a velux window to the side. Providing access into bedroom three.
Bedroom 3
4.2mx2.9m
Carpeted double bedroom with a window to the rear and a radiator.
Reception Room
4.0mx3.7m
Carpeted reception room with fitted wardrobes, a radiator and a velux window to the rear. Providing access into bedroom two.
Bedroom 2
4.8mx4.0m
Carpeted double bedroom with a radiator and a window to the side
External
Extensive gardens to the side of the property. Off street parking and detached garage.
HMRC requirements
HMRC is a supervisory body for money laundering regulations, of which all estate agents need to be registered. As part of this, there are multiple requirements that agents must rigorously and consistently meet to ensure they stay compliant with the regulations and protect their clients. To do this, we use an identity verification service, approved by the Government as part of the Digital Identity and Attributes Trust Framework (DIATF). This method and the process we follow to ensure compliance for your transaction come with significant time, financial and legal implications hence a portion of this is passed on to our clients. We elected for this verification process due to the speed, certainty, and accuracy it delivers. This helps us to protect all our client's interests by using the most advanced verification process to help prevent the impacts of money laundering alongside our internal manual policies and procedures while staying compliant with HMRC.The administrative charge for this process is £35 plus VAT for a sole purchaser, £60 plus VAT for two purchasers and £70 plus VAT three or more purchasers.
Additional Information
Plot Area: 0.28 acresCouncil Tax : Band FAnnual Estimate: £3,512Tenure: FreeholdLocal AreaLocal Authority: DurhamConservation Area: NoFlood Risk:Rivers & Seas: No RiskSurface Water: Very Low
IMPORTANT NOTE TO POTENTIAL PURCHASERS:
We endeavour to make our particulars accurate and reliable, however, they do not constitute or form part of an offer or any contract and none is to be relied upon as statements of representation or fact. The services, systems and appliances listed in this specification have not been tested by us and no guarantee as to their operating ability or efficiency is given. All photographs and measurements have been taken as a guide only and are not precise. Floor plans where included are not to scale and accuracy is not guaranteed. If you require clarification or further information on any points, please contact us, especially if you are travelling some distance to view. Fixtures and fittings other than those mentioned are to be agreed with the seller.
Nevilles Cross Bank, Nevilles Cross, Durham, DH1
Additional Information
-
Property refDCI240029
-
EPCE
-
TenureFreehold
-
Council TaxF
-
Local authorityDurham City Council
Similar properties for sale by Reeds Rains Durham City
Containing a bath with overhead shower, a sink and a frosted window to the side
Carpeted double bedroom with a radiator and fitted wardrobes. Naturally lit by windows to the front, side and rear.
Carpeted reception room with a window to the front. Heated by a central heating radiator. Allows access into lounge, and hallways
Carpeted lounge with windows to the side and rear. Heated by a gas fire and central heating radiator.
Laminate units and worktops house free standing units, such as a plumbed in washer. Windows to the side and rear provide natural light and patio doors to the side allow access into the garden.
The pin shows the exact address of the property
Energy Efficiency Rating
Very energy efficient - lower running costs
Not energy efficient - higher running costs
Current
53Potential
78CO2 Rating
Very energy efficient - lower running costs
Not energy efficient - higher running costs
